Maison neuve à
Les Ormes-sur-Voulzie
(77134) Référence :
AD2476143_3
Prix du projet : Maison avec Terrain
prix 226 500 €
- 5 pièces
- 3 chambres
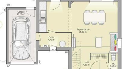
- Surface maison 90 m2
Maison de 5 pièces (90 m²) à vendre aux Ormes-sur-Voulzie
EMPLACEMENT PRIVILÉGIÉ - MAISON 5 PIÈCES NEUVE
À proximité du Transilien P (gare de Longueville, 1 h de Paris), à vendre bénéficiant d'un emplacement d'exception dans Les Ormes-sur-Voulzie (77134), venez découvrir cette maison de 5 pièces de 90 m² et de 567 m² de terrain.
Cette maison comporte 2 niveaux. Son intérieur comporte trois chambres, une cuisine et une salle de bains. Cette maison est neuve.
Cette maison se trouve dans un secteur recherché. Une école primaire y est implantée. Niveau transports en commun, il y a deux gares (Longueville et Sainte-Colombe Septveilles) à moins de 10 minutes en voiture. On trouve une bibliothèque dans les environs.
Elle est à vendre pour la somme de 226 500 €.
Contactez notre agence (Anne DELOHEN : 06-30-93-26-67) pour plus de renseignements sur la maison. Faites de vos projets immobiliers une réalité avec Maisons France Confort Nemours.
Annonce proposée par un Agent Commercial Partenaire.
Mentions légales
Terrain proposé par un partenaire foncier selon disponibilités et autorisation de publicité au prix de 41 000 €. Hors droit d'enregistrement et frais de notaire. Terrain + Maison proposés au prix de 226 500 € (Hors branchements et raccordements, papiers peints, peintures, revêtement de sol dans les chambres. Tarif modifiable sans préavis). Etiquette énergie : A. Différents modèles disponibles pour ce terrain. Assurances et garanties du constructeur (RC professionnelle, décennale, dommage ouvrage, garantie de remboursement de l'acompte, livraison à prix et délai convenu) : https://www.maisons-france-confort.fr/mentions-legales/. HEXAOM Services est enregistré auprès de l'ORIAS en tant que Courtier en financement, Niveau 1, sous le numéro 14001345.Agence Maisons France Confort de Nemours (77140)
- Téléphone :
- 01 64 28 58 32
- Adressse :
- 16 Avenue Carnot
77140 Nemours, France
