Maison neuve à
Falaise
(14700) Référence :
AV2359240_1
Prix du projet : Maison avec Terrain
prix 218 500 €
- 5 pièces
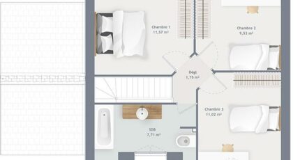
- 3 chambres
- Surface maison 80 m2
Maison T5 (80 m²) à vendre à Épaney
PROCHE DE CAEN - MAISON 5 PIÈCES NEUVE
En vente : située à 38 km de la Manche et à 31 km de Caen, à Épaney (14170), Maisons France Confort Lisieux vous présente cette maison de 5 pièces de 80 m² et de 984 m² de terrain.
Cette maison possède 2 niveaux. Elle comporte trois chambres, une cuisine et une salle de bains. La maison est neuve.
Une école élémentaire est implantée dans le quartier. Niveau transports en commun, il y a la gare Couliboeuf à moins de 10 minutes en voiture. L'autoroute A88 et la nationale N158 sont accessibles à moins de 9 km. On trouve un tennis dans les environs.
Elle est à vendre pour la somme de 218 500 €.
Prenez contact avec notre agence (VAUDRY Angélique : 02-31-62-91-30) pour obtenir de plus amples informations sur cette maison, sur les démarches à suivre ou sur les modalités de vente. Maisons France Confort Lisieux est là pour vous accompagner à toutes les étapes de l'achat.
Mentions légales
Terrain proposé par un partenaire foncier selon disponibilités et autorisation de publicité au prix de 45 961 €. Hors droit d'enregistrement et frais de notaire. Terrain + Maison proposés au prix de 218 500 € (Hors branchements et raccordements, papiers peints, peintures, revêtement de sol dans les chambres. Tarif modifiable sans préavis). Etiquette énergie : A. Différents modèles disponibles pour ce terrain. Assurances et garanties du constructeur (RC professionnelle, décennale, dommage ouvrage, garantie de remboursement de l'acompte, livraison à prix et délai convenu) : https://www.maisons-france-confort.fr/mentions-legales/. HEXAOM Services est enregistré auprès de l'ORIAS en tant que Courtier en financement, Niveau 1, sous le numéro 14001345.Agence Maisons France Confort de Lisieux (14100)
- Téléphone :
- 02 31 62 91 30
- Adressse :
- 41 boulevard Jeanne d'Arc
14100 Lisieux, France
