Maison neuve à
Falaise (14700) Référence : AV2359421_4

Prix du projet : Maison avec Terrain

prix 190 000 €

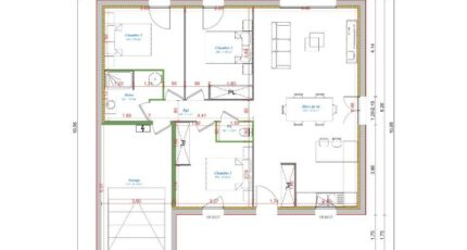
  • 5 pièces
  • 3 chambres
  • Surface maison 75 m2

Saint-Martin-de-Mieux : maison de 5 pièces (75 m²) en vente
MAISON 5 PIÈCES NEUVE
En vente à 46 km de la Manche, notre agence Maisons France Confort Lisieux est ravie de vous proposer à Saint-Martin-de-Mieux (14700), cette maison de 5 pièces de plain-pied de 75 m² et de 832 m² de terrain.
Son intérieur compte trois chambres, une cuisine et une salle de bains. La maison est neuve.
Il y a une école élémentaire dans le quartier. L'autoroute A88 et la nationale N158 sont accessibles à moins de 2 km. On trouve une boucherie-charcuterie dans les environs.
Elle est à vendre pour la somme de 190 000 €.
N'hésitez pas à prendre contact avec Angélique VAUDRY (tél : 02-31-62-91-30) pour toute question sur cette maison ou sur les démarches à suivre.

Mentions légales

Terrain proposé par un partenaire foncier selon disponibilités et autorisation de publicité au prix de 38 150 €. Hors droit d'enregistrement et frais de notaire. Terrain + Maison proposés au prix de 190 000 € (Hors branchements et raccordements, papiers peints, peintures, revêtement de sol dans les chambres. Tarif modifiable sans préavis). Etiquette énergie : A. Différents modèles disponibles pour ce terrain. Assurances et garanties du constructeur (RC professionnelle, décennale, dommage ouvrage, garantie de remboursement de l'acompte, livraison à prix et délai convenu) : https://www.maisons-france-confort.fr/mentions-legales/. HEXAOM Services est enregistré auprès de l'ORIAS en tant que Courtier en financement, Niveau 1, sous le numéro 14001345.

Contactez l'agence de Lisieux

02 31 62 91 30

    * Champs obligatoires

    Vos informations sont traitées par HEXAOM et transmises à un conseiller commercial qui vous contactera afin de répondre à votre demande. Les plans et images présentés sur notre site sont la propriété d’HEXAOM et ne peuvent pas être reproduits sans son accord. Pour retrouver notre politique de protection des données personnelles et exercer vos droits conformément à la « loi informatique et liberté » cliquez-ici.