Maison neuve à
Favières (77220) Référence : CY2406329_2

Prix du projet : Maison avec Terrain

prix 316 000 €

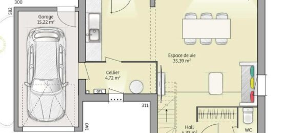
  • 5 pièces
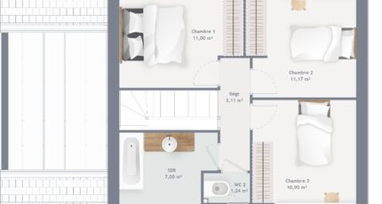
  • 3 chambres
  • Surface maison 90 m2

VENTE d'une maison T5 (90 m²) à Favières
IDÉALEMENT SITUÉE - MAISON 5 PIÈCES NEUVE
À proximité de la station Tournan (Paris à 40 min par le RER E), Maisons France Confort Mareuil-lès-Meaux vous présente cette maison de 5 pièces de 90 m² idéalement située dans Favières (77220).
C'est une maison de 2 niveaux. Elle compte trois chambres, une cuisine et une salle de bains. La maison est neuve.
Le terrain du bien s'étend sur 355 m².
La maison se trouve dans un quartier recherché. Il y a l'École Primaire les Petits Hiboux à moins de 10 minutes à pied. Niveau transports en commun, on trouve le RER E et A ainsi que cinq gares à moins de 10 minutes en voiture.
Elle est proposée à l'achat pour 316 000 €.
Prenez contact avec notre agence (YAHIAOUI Cedric : 06-66-57-00-63) pour tout renseignement sur la propriété.

Annonce proposée par un Agent Commercial Partenaire.

Mentions légales

Terrain proposé par un partenaire foncier selon disponibilités et autorisation de publicité au prix de 154 000 €. Hors droit d'enregistrement et frais de notaire. Terrain + Maison proposés au prix de 316 000 € (Hors branchements et raccordements, papiers peints, peintures, revêtement de sol dans les chambres. Tarif modifiable sans préavis). Etiquette énergie : A. Différents modèles disponibles pour ce terrain. Assurances et garanties du constructeur (RC professionnelle, décennale, dommage ouvrage, garantie de remboursement de l'acompte, livraison à prix et délai convenu) : https://www.maisons-france-confort.fr/mentions-legales/. HEXAOM Services est enregistré auprès de l'ORIAS en tant que Courtier en financement, Niveau 1, sous le numéro 14001345.

Contactez l'agence de Mareuil-lès-Meaux

01 60 09 28 30

    * Champs obligatoires

    Vos informations sont traitées par HEXAOM et transmises à un conseiller commercial qui vous contactera afin de répondre à votre demande. Les plans et images présentés sur notre site sont la propriété d’HEXAOM et ne peuvent pas être reproduits sans son accord. Pour retrouver notre politique de protection des données personnelles et exercer vos droits conformément à la « loi informatique et liberté » cliquez-ici.