Maison neuve à
Tournan-en-Brie (77220) Référence : FS2386654_4

Prix du projet : Maison avec Terrain

prix 335 000 €

  • 5 pièces
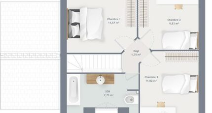
  • 3 chambres
  • Surface maison 80 m2

VENTE : maison de 5 pièces (80 m²) à Tournan-en-Brie
PROCHE GARE - MAISON 5 PIÈCES NEUVE
À deux pas de la station Tournan (Paris à 40 min avec le RER E), découvrez cette maison de 5 pièces de 80 m² en vente dans Tournan-en-Brie (77220), proche de la gare.
C'est une maison de 2 niveaux. Elle comporte trois chambres, une cuisine et une salle de bains. Cette maison est neuve.
Le terrain du bien s'étend sur 654 m².
Des écoles primaires sont implantées à moins de 10 minutes à pied, tout comme trois structures d'accueil pour les tout-petits. Niveau transports en commun, il y a la station de RER Tournan (ligne E) ainsi que la gare Tournan-en-Brie à quelques pas du bien. On trouve une bibliothèque, un tennis, des commerces, trois boulangeries, un supermarché, une boucherie-charcuterie et deux épiceries à proximité. Enfin, le marché Place du marché a lieu chaque samedi matin.
Son prix de vente est de 335 000 €.
Prenez contact avec notre agence (Félix SOUMARMON : 06-10-24-97-84) pour obtenir de plus amples renseignements sur le bien, sur les modalités de vente ou sur les démarches à suivre. Maisons France Confort Magny-le-Hongre est là pour vous accompagner à toutes les étapes de l'achat.

Annonce proposée par un Agent Commercial Partenaire.

Mentions légales

Terrain proposé par un partenaire foncier selon disponibilités et autorisation de publicité au prix de 170 000 €. Hors droit d'enregistrement et frais de notaire. Terrain + Maison proposés au prix de 335 000 € (Hors branchements et raccordements, papiers peints, peintures, revêtement de sol dans les chambres. Tarif modifiable sans préavis). Etiquette énergie : A. Différents modèles disponibles pour ce terrain. Assurances et garanties du constructeur (RC professionnelle, décennale, dommage ouvrage, garantie de remboursement de l'acompte, livraison à prix et délai convenu) : https://www.maisons-france-confort.fr/mentions-legales/. HEXAOM Services est enregistré auprès de l'ORIAS en tant que Courtier en financement, Niveau 1, sous le numéro 14001345.

Contactez l'agence de Magny-le-Hongre

01 84 80 92 96

    * Champs obligatoires

    Vos informations sont traitées par HEXAOM et transmises à un conseiller commercial qui vous contactera afin de répondre à votre demande. Les plans et images présentés sur notre site sont la propriété d’HEXAOM et ne peuvent pas être reproduits sans son accord. Pour retrouver notre politique de protection des données personnelles et exercer vos droits conformément à la « loi informatique et liberté » cliquez-ici.