Maison neuve à
Flayosc (83780) Référence : NE2496606_1

Prix du projet : Maison avec Terrain

prix 382 000 €

  • 5 pièces
  • 4 chambres
  • Surface maison 119 m2

Natacha Espinosa de Maisons France Confort, vous propose de réalisez votre projet de construction sur la commune de Flayosc.

Venez découvrir ce terrain de 934m² situé dans un quartier calme et résidentiel.

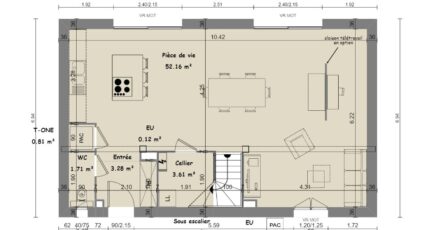
Construisons ensemble votre maison familiale de style bastide de 119m². Vous y découvrirez au rez-de-chaussée une magnifique pièce de vie lumineuse qui vous permettra de profiter de moments familiaux et amicaux.
A l'étage se trouve l'espace nuit composé d'une suite parentale, de trois chambres et d'une salle d'eau indépendante.

Vous souhaitez en savoir plus sur ce projet ou élaborer votre propre plan?
N'hésitez pas et contactez moi au o6.o9.71.88.69

Le prix comprend le terrain, le coût de la construction (voir descriptif lors du RDV), provision terrassement
Le prix ne comprend pas : frais de notaire d'acquisition terrain, taxes et raccordements, aménagement intérieur et extérieur

Mentions légales

Terrain proposé par un partenaire foncier selon disponibilités et autorisation de publicité au prix de 145 000 €. Hors droit d'enregistrement et frais de notaire. Terrain + Maison proposés au prix de 382 000 € (Hors branchements et raccordements, papiers peints, peintures, revêtement de sol dans les chambres. Tarif modifiable sans préavis). Etiquette énergie : A. Différents modèles disponibles pour ce terrain. Assurances et garanties du constructeur (RC professionnelle, décennale, dommage ouvrage, garantie de remboursement de l'acompte, livraison à prix et délai convenu) : https://www.maisons-france-confort.fr/mentions-legales/. HEXAOM Services est enregistré auprès de l'ORIAS en tant que Courtier en financement, Niveau 1, sous le numéro 14001345.

Contactez l'agence de Trans-en-Provence

04 94 50 88 00

    * Champs obligatoires

    Vos informations sont traitées par HEXAOM et transmises à un conseiller commercial qui vous contactera afin de répondre à votre demande. Les plans et images présentés sur notre site sont la propriété d’HEXAOM et ne peuvent pas être reproduits sans son accord. Pour retrouver notre politique de protection des données personnelles et exercer vos droits conformément à la « loi informatique et liberté » cliquez-ici.