Maison neuve à
Fontenilles
(31470) Référence :
SP2421498_1
Prix du projet : Maison avec Terrain
prix 395 000 €
- 6 pièces
- 4 chambres
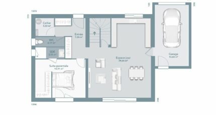
- Surface maison 112 m2
VENTE d'une maison de 6 pièces (112 m²) à Fontenilles
MAISON 6 PIÈCES NEUVE - PROCHE DE TOULOUSE
À vendre : à quelques kilomètres de Toulouse, ayez le coup de coeur pour cette maison de 6 pièces de 112 m² à Fontenilles (31470).
Cette maison compte 2 niveaux. Son intérieur se divise en quatre chambres, une cuisine et deux salles de bains. La maison est neuve.
Le terrain du bien est de 500 m².
L'École Maternelle Publique et l'École Élémentaire Publique sont implantées à moins de 10 minutes à pied, tout comme une structure d'accueil pour les enfants en bas âge. Côté transports, on trouve deux gares (Brax-Léguevin et Mérenvielle) à moins de 10 minutes en voiture. On trouve un accès à la nationale N124 à 4 km. Il y a un tennis, une bibliothèque, deux boulangeries, quatre commerces, un supermarché et une boucherie-charcuterie à quelques minutes.
Elle est à vendre pour la somme de 395 000 €.
Prenez contact avec 05 61 16 47 77 pour toute question sur cette maison, sur les démarches à suivre ou sur les modalités de vente. Maisons France Confort Tournefeuille vous accompagne à toutes les étapes de l'achat et dans tous vos projets immobiliers.
Annonce proposée par un Agent Commercial Partenaire.
Mentions légales
Terrain proposé par un partenaire foncier selon disponibilités et autorisation de publicité au prix de 135 000 €. Hors droit d'enregistrement et frais de notaire. Terrain + Maison proposés au prix de 395 000 € (Hors branchements et raccordements, papiers peints, peintures, revêtement de sol dans les chambres. Tarif modifiable sans préavis). Etiquette énergie : A. Différents modèles disponibles pour ce terrain. Assurances et garanties du constructeur (RC professionnelle, décennale, dommage ouvrage, garantie de remboursement de l'acompte, livraison à prix et délai convenu) : https://www.maisons-france-confort.fr/mentions-legales/. HEXAOM Services est enregistré auprès de l'ORIAS en tant que Courtier en financement, Niveau 1, sous le numéro 14001345.Agence Maisons France Confort de Tournefeuille (31170)
- Téléphone :
- 05 61 16 47 77
- Adressse :
- 114 chemin de Larramet
31170 Tournefeuille, France
