Maison neuve à
Fontenilles (31470) Référence : SP2455528_3

Prix du projet : Maison avec Terrain

prix 425 000 €

  • 6 pièces
  • 4 chambres
  • Surface maison 112 m2

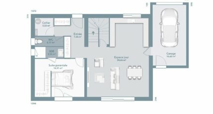
VENTE d'une maison de 6 pièces (112 m²) à Fontenilles
PROCHE DE TOULOUSE - MAISON 6 PIÈCES NEUVE
À vendre : localisée à quelques kilomètres de Toulouse, ayez le coup de coeur pour à Fontenilles (31470), cette maison de 6 pièces de 112 m². Elle propose quatre chambres, une cuisine et deux salles de bains.
Le terrain de la maison s'étend sur 670 m².
C'est une maison de 2 niveaux. Elle est neuve.
L'École Maternelle Publique et l'École Élémentaire Publique sont implantées à moins de 10 minutes à pied, tout comme une structure d'accueil pour les enfants en bas âge. Côté transports, il y a deux gares (Brax-Léguevin et Mérenvielle) à moins de 10 minutes en voiture. On trouve un accès à la nationale N124 à 9 km. On trouve un tennis, une bibliothèque, trois commerces et une boucherie-charcuterie dans les environs.
Elle est à vendre pour la somme de 425 000 €.
N'hésitez pas à prendre contact avec notre agence pour toute information sur ce bien ou sur les démarches à suivre.

Annonce proposée par un Agent Commercial Partenaire.

Mentions légales

Terrain proposé par un partenaire foncier selon disponibilités et autorisation de publicité au prix de 140 000 €. Hors droit d'enregistrement et frais de notaire. Terrain + Maison proposés au prix de 425 000 € (Hors branchements et raccordements, papiers peints, peintures, revêtement de sol dans les chambres. Tarif modifiable sans préavis). Etiquette énergie : A. Différents modèles disponibles pour ce terrain. Assurances et garanties du constructeur (RC professionnelle, décennale, dommage ouvrage, garantie de remboursement de l'acompte, livraison à prix et délai convenu) : https://www.maisons-france-confort.fr/mentions-legales/. HEXAOM Services est enregistré auprès de l'ORIAS en tant que Courtier en financement, Niveau 1, sous le numéro 14001345.

Contactez l'agence de Tournefeuille

05 61 16 47 77

    * Champs obligatoires

    Vos informations sont traitées par HEXAOM et transmises à un conseiller commercial qui vous contactera afin de répondre à votre demande. Les plans et images présentés sur notre site sont la propriété d’HEXAOM et ne peuvent pas être reproduits sans son accord. Pour retrouver notre politique de protection des données personnelles et exercer vos droits conformément à la « loi informatique et liberté » cliquez-ici.