Maison neuve à
Forges (77130) Référence : CY2430109_1

Prix du projet : Maison avec Terrain

prix 245 000 €

  • 5 pièces
  • 3 chambres
  • Surface maison 90 m2

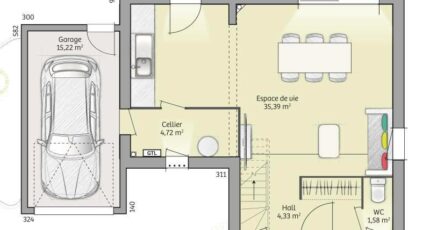
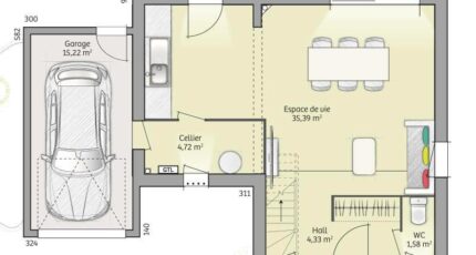
Forges : maison de 5 pièces (90 m²) en vente
PROCHE DE MELUN - MAISON 5 PIÈCES NEUVE
En vente : proche de la gare de Montereau (Paris à 60 min avec le Transilien R), nous vous proposons cette maison de 5 pièces de 90 m² à Forges (77130).
Cette maison possède 2 niveaux. Son intérieur comporte trois chambres, une cuisine et une salle de bains. Cette maison est neuve.
Le terrain de la propriété est de 800 m².
Niveau transports en commun, il y a les gares Montereau, La Grande-Paroisse et Vernou-la-Celle-sur-Seine à moins de 10 minutes en voiture. On trouve un tennis dans les environs.
Son prix de vente est de 245 000 €.
N'hésitez pas à prendre contact avec Cedric YAHIAOUI (tél : 06-66-57-00-63) pour toute information sur cette maison, sur les modalités de vente ou sur les démarches à suivre.

Annonce proposée par un Agent Commercial Partenaire.

Mentions légales

Terrain proposé par un partenaire foncier selon disponibilités et autorisation de publicité au prix de 85 000 €. Hors droit d'enregistrement et frais de notaire. Terrain + Maison proposés au prix de 245 000 € (Hors branchements et raccordements, papiers peints, peintures, revêtement de sol dans les chambres. Tarif modifiable sans préavis). Etiquette énergie : A. Différents modèles disponibles pour ce terrain. Assurances et garanties du constructeur (RC professionnelle, décennale, dommage ouvrage, garantie de remboursement de l'acompte, livraison à prix et délai convenu) : https://www.maisons-france-confort.fr/mentions-legales/. HEXAOM Services est enregistré auprès de l'ORIAS en tant que Courtier en financement, Niveau 1, sous le numéro 14001345.

Contactez l'agence de Magny-le-Hongre

01 84 80 92 96

    * Champs obligatoires

    Vos informations sont traitées par HEXAOM et transmises à un conseiller commercial qui vous contactera afin de répondre à votre demande. Les plans et images présentés sur notre site sont la propriété d’HEXAOM et ne peuvent pas être reproduits sans son accord. Pour retrouver notre politique de protection des données personnelles et exercer vos droits conformément à la « loi informatique et liberté » cliquez-ici.