Maison neuve à
Forges (77130) Référence : CY2430180_1

Prix du projet : Maison avec Terrain

prix 242 000 €

  • 5 pièces
  • 3 chambres
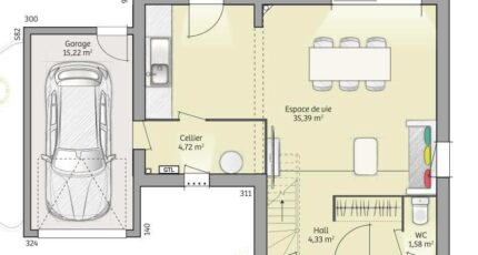
  • Surface maison 90 m2

Maison de 5 pièces (90 m²) à vendre à Forges
MAISON 5 PIÈCES NEUVE - PROCHE DE MELUN
En vente : proche de la gare de Montereau (Paris à 60 min avec le Transilien R), Maisons France Confort Magny-le-Hongre vous présente cette maison de 5 pièces de 90 m² et de 503 m² de terrain à Forges (77130). Elle offre trois chambres, une cuisine et une salle de bains.
Il s'agit d'une maison de 2 niveaux. Elle est neuve.
Côté transports, il y a les gares Montereau, La Grande-Paroisse et Vernou-la-Celle-sur-Seine à moins de 10 minutes en voiture. On trouve un tennis à proximité du logement.
Elle est à vendre pour la somme de 242 000 €.
Contactez notre agence (Cedric YAHIAOUI : 06-66-57-00-63) pour toute question sur la maison ou sur les démarches à suivre. Maisons France Confort Magny-le-Hongre est là pour vous accompagner à toutes les étapes de l'achat.

Annonce proposée par un Agent Commercial Partenaire.

Mentions légales

Terrain proposé par un partenaire foncier selon disponibilités et autorisation de publicité au prix de 82 000 €. Hors droit d'enregistrement et frais de notaire. Terrain + Maison proposés au prix de 242 000 € (Hors branchements et raccordements, papiers peints, peintures, revêtement de sol dans les chambres. Tarif modifiable sans préavis). Etiquette énergie : A. Différents modèles disponibles pour ce terrain. Assurances et garanties du constructeur (RC professionnelle, décennale, dommage ouvrage, garantie de remboursement de l'acompte, livraison à prix et délai convenu) : https://www.maisons-france-confort.fr/mentions-legales/. HEXAOM Services est enregistré auprès de l'ORIAS en tant que Courtier en financement, Niveau 1, sous le numéro 14001345.

Contactez l'agence de Magny-le-Hongre

01 84 80 92 96

    * Champs obligatoires

    Vos informations sont traitées par HEXAOM et transmises à un conseiller commercial qui vous contactera afin de répondre à votre demande. Les plans et images présentés sur notre site sont la propriété d’HEXAOM et ne peuvent pas être reproduits sans son accord. Pour retrouver notre politique de protection des données personnelles et exercer vos droits conformément à la « loi informatique et liberté » cliquez-ici.