Maison neuve à
Fourmetot
(27500) Référence :
JP2305531_1
Prix du projet : Maison avec Terrain
prix 215 000 €
- 5 pièces
- 4 chambres
- Surface maison 85 m2
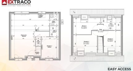
Maison T5 (85 m²) à vendre à Fourmetot
MAISON 5 PIÈCES NEUVE
À vendre : à 15 km de la Manche, à Fourmetot (27500), Les Maisons Extraco Pont-Audemer vous présente cette maison de 5 pièces de 85 m² avec vue sur espace vert.
Il s'agit d'une maison de 2 niveaux. Elle propose quatre chambres, une cuisine et deux salles de bains. La maison est neuve.
Le terrain du bien s'étend sur 1 394 m².
Il y a l'École Primaire Fourmetot à moins de 10 minutes à pied. Les autoroutes A13 et A131 sont accessibles à moins de 3 km.
Elle est à vendre pour la somme de 215 000 €.
Contactez notre agence (PETIT Juliette : 06-66-70-24-56) pour toute information sur cette maison.