Maison neuve à
Fourmetot
(27500) Référence :
JP2324458_3
Prix du projet : Maison avec Terrain
prix 239 500 €
- 5 pièces
- 4 chambres
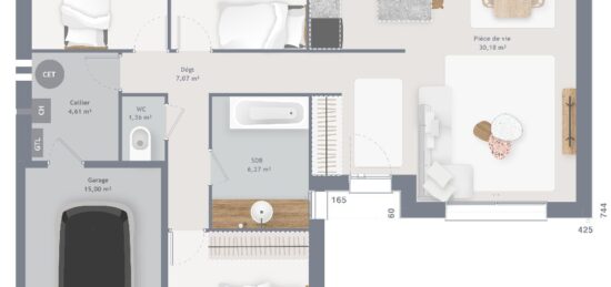
- Surface maison 105 m2
VENTE : maison de 5 pièces (105 m²) à Fourmetot
MAISON 5 PIÈCES NEUVE
En vente à 15 km de la Manche, à Fourmetot (27500), notre agence Les Maisons Extraco Pont-Audemer est heureuse de vous proposer cette maison de 5 pièces de 105 m².
C'est une maison de 2 niveaux. Son intérieur comporte quatre chambres, une cuisine et deux salles de bains. Cette maison est neuve.
Le terrain du bien est de 1 322 m².
L'École Primaire Fourmetot est implantée à moins de 10 minutes à pied. Les autoroutes A13 et A131 sont accessibles à moins de 3 km.
Son prix de vente est de 239 500 €.
Prenez contact avec Juliette PETIT (06-66-70-24-56) pour tout renseignement sur la maison et sur les modalités de vente.