Maison neuve à
Fublaines
(77470) Référence :
CY2459367_1
Prix du projet : Maison avec Terrain
prix 290 000 €
- 5 pièces
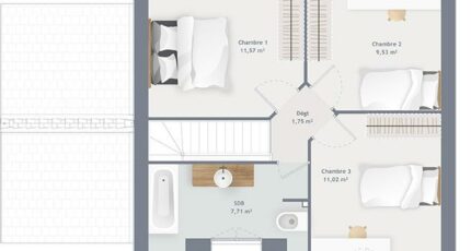
- 3 chambres
- Surface maison 80 m2
VENTE : maison de 5 pièces (80 m²) à Fublaines
IDÉALEMENT SITUÉE - MAISON 5 PIÈCES NEUVE
En vente : à quelques minutes de la gare de Trilport (Paris à 30 min par le Transilien P), idéalement située dans Fublaines (77470), nous vous proposons cette maison de 5 pièces de 80 m² et de 400 m² de terrain. Elle se divise en trois chambres, une cuisine et une salle de bains.
Il s'agit d'une maison de 2 niveaux. Elle est neuve.
Cette maison est située dans un secteur attractif. Il y a l'École Primaire la Colline à moins de 10 minutes à pied. Côté transports en commun, on trouve neuf gares à moins de 10 minutes en voiture. Il y a une épicerie dans les environs.
Elle est proposée à l'achat pour 290 000 €.
Contactez Cedric YAHIAOUI (06-66-57-00-63) pour plus de renseignements sur la maison, sur les démarches à suivre ou sur les modalités de vente.
Annonce proposée par un Agent Commercial Partenaire.
Mentions légales
Terrain proposé par un partenaire foncier selon disponibilités et autorisation de publicité au prix de 100 000 €. Hors droit d'enregistrement et frais de notaire. Terrain + Maison proposés au prix de 290 000 € (Hors branchements et raccordements, papiers peints, peintures, revêtement de sol dans les chambres. Tarif modifiable sans préavis). Etiquette énergie : A. Différents modèles disponibles pour ce terrain. Assurances et garanties du constructeur (RC professionnelle, décennale, dommage ouvrage, garantie de remboursement de l'acompte, livraison à prix et délai convenu) : https://www.maisons-france-confort.fr/mentions-legales/. HEXAOM Services est enregistré auprès de l'ORIAS en tant que Courtier en financement, Niveau 1, sous le numéro 14001345.Agence Maisons France Confort de Mareuil-lès-Meaux (77100)
- Téléphone :
- 01 60 09 28 30
- Adressse :
- Domexpo Est Village La Hayette
77100 Mareuil-lès-Meaux, France
