Maison neuve à
Gabian
(34320) Référence :
AB2433783_3
Prix du projet : Maison avec Terrain
prix 255 000 €
- 3 pièces
- 2 chambres
- Surface maison 70 m2
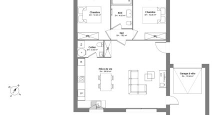
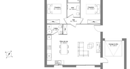
PROJET DE CONSTRUCTION - Gabian : maison T3 (70 m²)
PROCHE DE BÉZIERS - MAISON 3 PIÈCES
À vendre : à 28 km de la côte méditerranéenne et à quelques kilomètres de Béziers, nous sommes ravis de vous présenter cette maison de 3 pièces de plain-pied de 70 m² à Gabian (34320). Son intérieur propose deux chambres, une cuisine, un cellier et une salle de bains + GARAGE.
Le terrain de cette maison est de 820 m².
(Carrelage inclus dans toutes les pièces / Raccordements inclus).
Il y a une école primaire dans le quartier. Niveau transports, on trouve la gare Magalas à moins de 10 minutes en voiture. Les autoroutes A75 et A9 sont accessibles à moins de 19 km. Il y a une bibliothèque, une boulangerie, une épicerie et une poissonnerie à proximité du bien.
Son prix de vente est de 255 000 €.
Pour plus d'information contacter Anthony BALLESTER : 06-27-21-51-55 Maisons France Confort Béziers pour échanger sur votre projet et réaliser une étude gratuite. (Plan personnalisable). Tous nos ouvrages sont réalisés sur-mesure en fonction de vos attentes et de nos échanges avec vous ainsi que dans le respect de la règlementation RE 2020. Ce projet comporte les garanties suivantes: Contrat de construction CCMI. Dommage/Ouvrage. RC Garantie décennale. Parfaite achèvement. Etude de sol G2. Prix et délais convenu. Garantie de livraison. Garantie financière Pour votre tranquillité nous nous occupons de toutes les formalités administratives.
Mentions légales
Terrain proposé par un partenaire foncier selon disponibilités et autorisation de publicité au prix de 119 000 €. Hors droit d'enregistrement et frais de notaire. Terrain + Maison proposés au prix de 255 000 € (Hors branchements et raccordements, papiers peints, peintures, revêtement de sol dans les chambres. Tarif modifiable sans préavis). Etiquette énergie : A. Différents modèles disponibles pour ce terrain. Assurances et garanties du constructeur (RC professionnelle, décennale, dommage ouvrage, garantie de remboursement de l'acompte, livraison à prix et délai convenu) : https://www.maisons-france-confort.fr/mentions-legales/. HEXAOM Services est enregistré auprès de l'ORIAS en tant que Courtier en financement, Niveau 1, sous le numéro 14001345.Agence Maisons France Confort de Béziers (34500)
- Téléphone :
- 04 67 00 85 60
- Adressse :
- 66, avenue Pierre Verdier
34500 Béziers, France
