Maison neuve à
Grandfresnoy (60680) Référence : FBgrandfresnoy95_10

Prix du projet : Maison avec Terrain

prix 259 000 €

  • 5 pièces
  • 3 chambres
  • Surface maison 90 m2

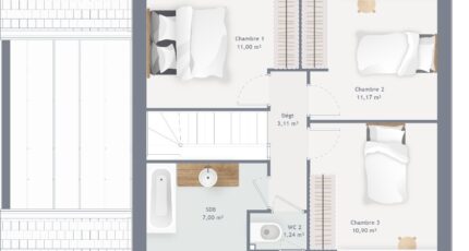
VENTE d'une maison de 5 pièces (90 m²) à Grandfresnoy
IDÉALEMENT SITUÉE - MAISON 5 PIÈCES NEUVE
En vente : à 14 km de Compiègne, Maisons France Confort Beauvais vous propose cette maison de 5 pièces de 90 m² idéalement située dans Grandfresnoy (60680).
C'est une maison de 2 niveaux. Son intérieur est composé de trois chambres, d'une cuisine et d'une salle de bains. La maison est neuve.
Le terrain de la propriété est de 1 200 m².
La propriété est située dans un quartier prisé. L'École Primaire Grp Scol. les Zocqs y est implantée. Niveau transports, il y a six gares à moins de 10 minutes en voiture. On trouve un accès à l'autoroute A1 à 1 km. On trouve une bibliothèque à quelques minutes du logement.
Elle est à vendre pour la somme de 259 000 €.
N'hésitez pas à prendre contact avec Fabrice BONELLO (06-09-50-50-09) pour tout renseignement sur la maison ou sur les démarches à suivre. Maisons France Confort Beauvais est là pour vous accompagner à toutes les étapes de l'achat.

Mentions légales

Terrain proposé par un partenaire foncier selon disponibilités et autorisation de publicité au prix de 95 000 €. Hors droit d'enregistrement et frais de notaire. Terrain + Maison proposés au prix de 259 000 € (Hors branchements et raccordements, papiers peints, peintures, revêtement de sol dans les chambres. Tarif modifiable sans préavis). Etiquette énergie : A. Différents modèles disponibles pour ce terrain. Assurances et garanties du constructeur (RC professionnelle, décennale, dommage ouvrage, garantie de remboursement de l'acompte, livraison à prix et délai convenu) : https://www.maisons-france-confort.fr/mentions-legales/. HEXAOM Services est enregistré auprès de l'ORIAS en tant que Courtier en financement, Niveau 1, sous le numéro 14001345.

Contactez l'agence de Beauvais

03 44 04 40 04

    * Champs obligatoires

    Vos informations sont traitées par HEXAOM et transmises à un conseiller commercial qui vous contactera afin de répondre à votre demande. Les plans et images présentés sur notre site sont la propriété d’HEXAOM et ne peuvent pas être reproduits sans son accord. Pour retrouver notre politique de protection des données personnelles et exercer vos droits conformément à la « loi informatique et liberté » cliquez-ici.