Maison neuve à
Grandfresnoy (60680) Référence : FBgrandfresnoy95_4

Prix du projet : Maison avec Terrain

prix 257 000 €

  • 6 pièces
  • 4 chambres
  • Surface maison 91 m2

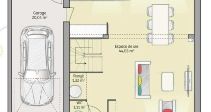
VENTE d'une maison T6 (91 m²) à Grandfresnoy
IDÉALEMENT SITUÉE - MAISON 6 PIÈCES NEUVE
À vendre : située à deux pas de Compiègne, nous vous proposons, idéalement située dans Grandfresnoy (60680), cette maison de 6 pièces de 91 m².
Cette maison compte 2 niveaux. Son intérieur comporte quatre chambres, une cuisine et une salle de bains. Cette maison est neuve.
Le terrain de la propriété s'étend sur 1 200 m².
Cette maison se situe dans un secteur attractif. L'École Primaire Grp Scol. les Zocqs y est implantée. Niveau transports, on trouve six gares à moins de 10 minutes en voiture. L'autoroute A1 est accessible à 1 km. Il y a une bibliothèque dans les environs.
Elle est à vendre pour la somme de 257 000 €.
Contactez notre agence (Fabrice BONELLO : 06-09-50-50-09) pour tout renseignement sur la maison, sur les démarches à suivre ou sur les modalités de vente. Maisons France Confort Beauvais est là pour vous accompagner dans tous vos projets immobiliers.

Mentions légales

Terrain proposé par un partenaire foncier selon disponibilités et autorisation de publicité au prix de 95 000 €. Hors droit d'enregistrement et frais de notaire. Terrain + Maison proposés au prix de 257 000 € (Hors branchements et raccordements, papiers peints, peintures, revêtement de sol dans les chambres. Tarif modifiable sans préavis). Etiquette énergie : A. Différents modèles disponibles pour ce terrain. Assurances et garanties du constructeur (RC professionnelle, décennale, dommage ouvrage, garantie de remboursement de l'acompte, livraison à prix et délai convenu) : https://www.maisons-france-confort.fr/mentions-legales/. HEXAOM Services est enregistré auprès de l'ORIAS en tant que Courtier en financement, Niveau 1, sous le numéro 14001345.

Contactez l'agence de Beauvais

03 44 04 40 04

    * Champs obligatoires

    Vos informations sont traitées par HEXAOM et transmises à un conseiller commercial qui vous contactera afin de répondre à votre demande. Les plans et images présentés sur notre site sont la propriété d’HEXAOM et ne peuvent pas être reproduits sans son accord. Pour retrouver notre politique de protection des données personnelles et exercer vos droits conformément à la « loi informatique et liberté » cliquez-ici.