Maison neuve à
Gretz-Armainvilliers
(77220) Référence :
FS2467453_1
Prix du projet : Maison avec Terrain
prix 324 000 €
- 5 pièces
- 3 chambres
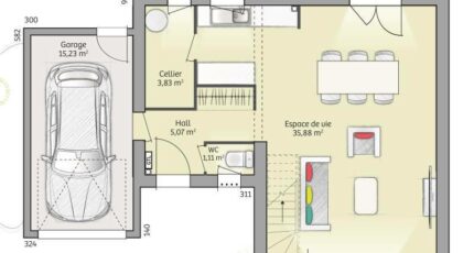
- Surface maison 90 m2
Gretz-Armainvilliers : maison T5 (90 m²) en vente
IDÉALEMENT SITUÉE - MAISON 5 PIÈCES NEUVE
À vendre : localisée à 30 km de Paris, notre agence Maisons France Confort Magny-le-Hongre est ravie de vous présenter cette maison de 5 pièces de 90 m² et de 284 m² de terrain idéalement située dans Gretz-Armainvilliers (77220). Elle dispose de trois chambres, d'une cuisine et d'une salle de bains.
Cette maison comporte 2 niveaux. Elle est neuve.
Cette maison se trouve dans un secteur recherché. Il y a des écoles de tous niveaux à moins de 10 minutes à pied. Niveau transports en commun, on trouve la gare Gretz-Armainvilliers dans un rayon de 1 km. Il y a deux tennis, des commerces, deux boucheries-charcuteries, un bureau de poste et des épiceries à proximité.
Elle est à vendre pour la somme de 324 000 €.
N'hésitez pas à prendre contact avec Félix SOUMARMON (tél : 06-10-24-97-84) pour obtenir de plus amples renseignements sur la maison, sur les démarches à suivre ou sur les modalités de vente. Concrétisez vos projets immobiliers avec Maisons France Confort Magny-le-Hongre.
Annonce proposée par un Agent Commercial Partenaire.
Mentions légales
Terrain proposé par un partenaire foncier selon disponibilités et autorisation de publicité au prix de 169 000 €. Hors droit d'enregistrement et frais de notaire. Terrain + Maison proposés au prix de 324 000 € (Hors branchements et raccordements, papiers peints, peintures, revêtement de sol dans les chambres. Tarif modifiable sans préavis). Etiquette énergie : A. Différents modèles disponibles pour ce terrain. Assurances et garanties du constructeur (RC professionnelle, décennale, dommage ouvrage, garantie de remboursement de l'acompte, livraison à prix et délai convenu) : https://www.maisons-france-confort.fr/mentions-legales/. HEXAOM Services est enregistré auprès de l'ORIAS en tant que Courtier en financement, Niveau 1, sous le numéro 14001345.Agence Maisons France Confort de Magny-le-Hongre (77700)
- Téléphone :
- 01 84 80 92 96
- Adressse :
- 11 rue de Courtalin
77700 Magny-le-Hongre, France
