Maison neuve à
Hardivillers (60120) Référence : FBHardivillers32_3

Prix du projet : Maison avec Terrain

prix 193 000 €

  • 6 pièces
  • 4 chambres
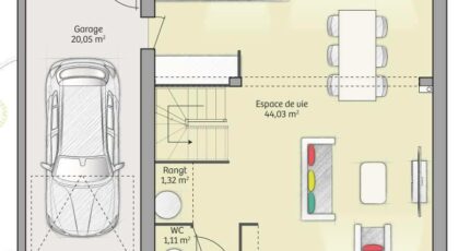
  • Surface maison 91 m2

Hardivillers : maison F6 (91 m²) en vente
EMPLACEMENT PRIVILÉGIÉ - MAISON 6 PIÈCES NEUVE
À 22 km de Beauvais, venez découvrir cette maison de 6 pièces de 91 m² bénéficiant d'un emplacement d'exception dans Hardivillers (60120).
C'est une maison de 2 niveaux. Son intérieur compte quatre chambres, une cuisine et une salle de bains. La maison est neuve.
Le terrain du bien s'étend sur 475 m².
Cette propriété est située dans un secteur prisé. Une école élémentaire y est implantée. On trouve un accès à l'autoroute A16 à 2 km.
Elle est à vendre pour la somme de 193 000 €.
N'hésitez pas à prendre contact avec Fabrice BONELLO (06-09-50-50-09) pour obtenir de plus amples informations sur la maison. Faites de vos projets immobiliers une réalité avec Maisons France Confort Beauvais.

Mentions légales

Terrain proposé par un partenaire foncier selon disponibilités et autorisation de publicité au prix de 30 000 €. Hors droit d'enregistrement et frais de notaire. Terrain + Maison proposés au prix de 193 000 € (Hors branchements et raccordements, papiers peints, peintures, revêtement de sol dans les chambres. Tarif modifiable sans préavis). Etiquette énergie : A. Différents modèles disponibles pour ce terrain. Assurances et garanties du constructeur (RC professionnelle, décennale, dommage ouvrage, garantie de remboursement de l'acompte, livraison à prix et délai convenu) : https://www.maisons-france-confort.fr/mentions-legales/. HEXAOM Services est enregistré auprès de l'ORIAS en tant que Courtier en financement, Niveau 1, sous le numéro 14001345.

Contactez l'agence de Beauvais

03 44 04 40 04

    * Champs obligatoires

    Vos informations sont traitées par HEXAOM et transmises à un conseiller commercial qui vous contactera afin de répondre à votre demande. Les plans et images présentés sur notre site sont la propriété d’HEXAOM et ne peuvent pas être reproduits sans son accord. Pour retrouver notre politique de protection des données personnelles et exercer vos droits conformément à la « loi informatique et liberté » cliquez-ici.