Maison neuve à
Hardivillers
(60120) Référence :
FBHardivillers32_4
Prix du projet : Maison avec Terrain
prix 206 000 €
- 5 pièces
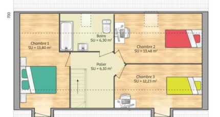
- 3 chambres
- Surface maison 80 m2
Hardivillers : maison T5 (80 m²) à vendre
EMPLACEMENT PRIVILÉGIÉ - MAISON 5 PIÈCES NEUVE
En vente : à deux pas de Beauvais, nous vous proposons cette maison de 5 pièces de 80 m² et de 475 m² de terrain bénéficiant d'un emplacement d'exception dans Hardivillers (60120). Elle comporte trois chambres, une cuisine et une salle de bains.
Cette maison compte 2 niveaux. Elle est neuve.
La maison se trouve dans un secteur prisé. On y trouve une école élémentaire. L'autoroute A16 est accessible à 2 km.
Elle est à vendre pour la somme de 206 000 €.
N'hésitez pas à prendre contact avec notre agence (BONELLO Fabrice : 06-09-50-50-09) pour toute question sur la maison. Maisons France Confort Beauvais vous accompagne dans toutes vos démarches et à toutes les étapes de votre projet.
Mentions légales
Terrain proposé par un partenaire foncier selon disponibilités et autorisation de publicité au prix de 30 000 €. Hors droit d'enregistrement et frais de notaire. Terrain + Maison proposés au prix de 206 000 € (Hors branchements et raccordements, papiers peints, peintures, revêtement de sol dans les chambres. Tarif modifiable sans préavis). Etiquette énergie : A. Différents modèles disponibles pour ce terrain. Assurances et garanties du constructeur (RC professionnelle, décennale, dommage ouvrage, garantie de remboursement de l'acompte, livraison à prix et délai convenu) : https://www.maisons-france-confort.fr/mentions-legales/. HEXAOM Services est enregistré auprès de l'ORIAS en tant que Courtier en financement, Niveau 1, sous le numéro 14001345.Agence Maisons France Confort de Beauvais (60000)
- Téléphone :
- 03 44 04 40 04
- Adressse :
- 42 rue Pierre Jacoby
60000 Beauvais, France
