Maison neuve à
Hermanville-sur-Mer (14880) Référence : SC2398808_2

Prix du projet : Maison avec Terrain

prix 330 000 €

  • 5 pièces
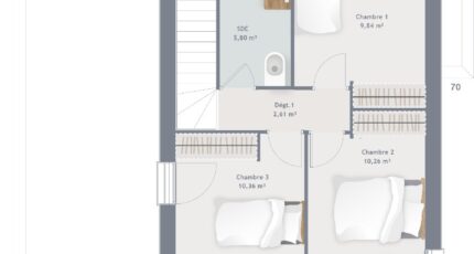
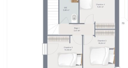
  • 3 chambres
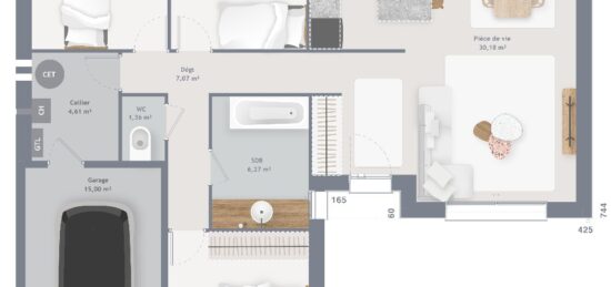
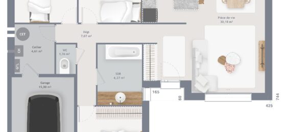
  • Surface maison 90 m2

Maison neuve F5 - 90 m² - Hermanville-sur-Mer

À Hermanville-sur-Mer, à seulement 2 km de la mer et 12 km de Caen, venez découvrir cette maison neuve F5 de 90 m² sur un terrain de 400 m², idéalement située dans un secteur recherché.

🔹 Maison neuve à 2 niveaux
🔹 3 chambres, cuisine, salle de bains
🔹 Quartier calme et convoité
🔹 École primaire et commerces à proximité
🔹 Accès rapide aux axes routiers

💰 Prix : 330 000 €

Projet idéal pour une résidence principale ou familiale.

📞 Contact :
Séverine CHATARD - 06 29 77 10 07
Maisons France Confort Caen
Accompagnement personnalisé à chaque étape de votre projet immobilier.

Mentions légales

Terrain proposé par un partenaire foncier selon disponibilités et autorisation de publicité au prix de 108 000 €. Hors droit d'enregistrement et frais de notaire. Terrain + Maison proposés au prix de 330 000 € (Hors branchements et raccordements, papiers peints, peintures, revêtement de sol dans les chambres. Tarif modifiable sans préavis). Etiquette énergie : A. Différents modèles disponibles pour ce terrain. Assurances et garanties du constructeur (RC professionnelle, décennale, dommage ouvrage, garantie de remboursement de l'acompte, livraison à prix et délai convenu) : https://www.maisons-france-confort.fr/mentions-legales/. HEXAOM Services est enregistré auprès de l'ORIAS en tant que Courtier en financement, Niveau 1, sous le numéro 14001345.

Contactez l'agence de Caen

02 31 86 12 21

    * Champs obligatoires

    Vos informations sont traitées par HEXAOM et transmises à un conseiller commercial qui vous contactera afin de répondre à votre demande. Les plans et images présentés sur notre site sont la propriété d’HEXAOM et ne peuvent pas être reproduits sans son accord. Pour retrouver notre politique de protection des données personnelles et exercer vos droits conformément à la « loi informatique et liberté » cliquez-ici.