Maison neuve à
Injoux-Génissiat
(01200) Référence :
SG2627_4
Prix du projet : Maison avec Terrain
prix 345 500 €
- 4 pièces
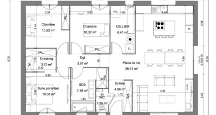
- 3 chambres
- Surface maison 96 m2
VENTE d'une maison de 4 pièces (96 m²) à Injoux-Génissiat
MAISON 4 PIÈCES NEUVE
En vente : située à 28 km de la frontière suisse, venez découvrir cette maison de 4 pièces de plain-pied de 96 m² à Injoux-Génissiat (01200).
Elle comporte trois chambres, une cuisine et une salle de bains. Cette maison est neuve.
Le terrain de la propriété s'étend sur 927 m².
L'École Primaire des Balmettes est implantée dans la commune. Côté transports, on trouve la gare Bellegarde-sur-Valserine à moins de 10 minutes en voiture. L'autoroute A40 est accessible à 8 km. Il y a une bibliothèque dans les environs.
Son prix de vente est de 345 500 €.
Prenez contact avec Sébastien GABRILLARGUES (06-81-77-73-67) pour tout renseignement sur ce bien, sur les démarches à suivre ou sur les modalités de vente.
Annonce proposée par un Agent Commercial Partenaire.
Mentions légales
Terrain proposé par un partenaire foncier selon disponibilités et autorisation de publicité au prix de 139 000 €. Hors droit d'enregistrement et frais de notaire. Terrain + Maison proposés au prix de 345 500 € (Hors branchements et raccordements, papiers peints, peintures, revêtement de sol dans les chambres. Tarif modifiable sans préavis). Etiquette énergie : A. Différents modèles disponibles pour ce terrain. Assurances et garanties du constructeur (RC professionnelle, décennale, dommage ouvrage, garantie de remboursement de l'acompte, livraison à prix et délai convenu) : https://www.maisons-france-confort.fr/mentions-legales/. HEXAOM Services est enregistré auprès de l'ORIAS en tant que Courtier en financement, Niveau 1, sous le numéro 14001345.Agence Maisons France Confort de Bourg-en-Bresse (01000)
- Téléphone :
- 04 74 14 04 47
- Adressse :
- 20, rue Gabriel Vicaire
01000 Bourg-en-Bresse, France