Maison neuve à
Inzinzac-Lochrist
(56650) Référence :
RLBC2495454_2
Prix du projet : Maison avec Terrain
prix 215 700 €
- 4 pièces
- 3 chambres
- Surface maison 67 m2
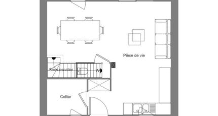
MAISON NEUVE 4 PIÈCES DE 67 M² PROCHE CENTRE-VILLE À INZINZAC-LOCHRIST
PRÉSENTATION DU BIEN
Située à Inzinzac-Lochrist, proche du centre-ville, cette maison neuve à construire offre une surface habitable de 67 m² sur un terrain de 280 m². La ville est à une quinzaine de kilomètres de Lorient et se trouve à environ 22 km de l'océan Atlantique.
Vous pourrez réaliser votre maison avec trois chambres, une cuisine, ainsi qu'une salle de bains équipée d'une baignoire. La maison dispose d'un espace total de 67 m² permettant d'aménager confortablement les différentes pièces.
La maison est sur deux niveaux, offrant ainsi un espace de vie réparti sur un rez-de-chaussée et un étage.
Construisez votre maison sur un terrain de 280 m², un espace extérieur qui vous permettra de profiter pleinement de la vie en zone d'habitation.
ENVIRONNEMENT
Inzinzac-Lochrist est une commune proche de Lorient, située à moins de 23 kilomètres de l'océan Atlantique. Vous trouverez dans cette zone pavillonnaire des commerces variés aux alentours. Pour vos déplacements, deux gares sont accessibles à proximité : Hennebont à 5,5 km et Brandérion à 8,6 km. Deux nationales sont situées à moins de 10 km, la N24 et la N165. Des établissements scolaires de niveau primaire, comme l'école primaire privée Notre-Dame de Lourdes et l'école primaire publique Jules Ferry, sont accessibles en quelques minutes à pied.
NOUS CONTACTER
Cette maison à construire est proposée à la vente au prix de 215 700 euros, honoraires et charges comprises.
N'hésitez pas à prendre contact avec l'agence Maisons de l'Avenir Lorient pour concrétiser votre projet. Riwal LE BARON COURTET sera votre interlocuteur privilégié. Vous pouvez le joindre au 02-97-21-63-96.
Construisez votre maison et réalisez votre projet dès aujourd'hui en appelant dès maintenant.
Mentions légales
Terrain proposé par un partenaire foncier selon disponibilités et autorisation de publicité au prix de 59 900 €. Hors droit d'enregistrement et frais de notaire. Terrain + Maison proposés au prix de 215 700 € (Hors branchements et raccordements, papiers peints, peintures, revêtement de sol dans les chambres. Tarif modifiable sans préavis). Etiquette énergie : A. Différents modèles disponibles pour ce terrain. Assurances et garanties du constructeur (RC professionnelle, décennale, dommage ouvrage, garantie de remboursement de l'acompte, livraison à prix et délai convenu) : https://www.maisonsdelavenir.com/mentions-legales/.Agence Maisons de l'Avenir de Lorient (56100)
- Téléphone :
- 02 97 21 63 96
- Adressse :
- 158 rue du Colonel Muller
56100 Lorient, France
