Maison neuve à
Jasseron (01250) Référence : SG2609_2

Prix du projet : Maison avec Terrain

prix 355 000 €

  • 4 pièces
  • 3 chambres
  • Surface maison 115 m2

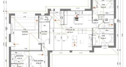
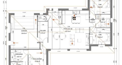
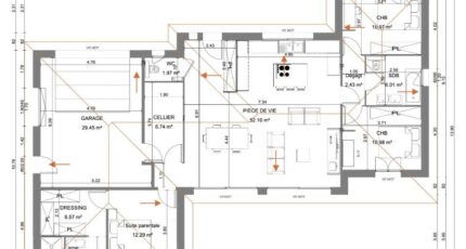
VENTE : maison de 4 pièces (115 m²) à Jasseron
PROCHE DE BOURG-EN-BRESSE - MAISON 4 PIÈCES NEUVE
À vendre : localisée à quelques kilomètres de Bourg-en-Bresse, à Jasseron (01250), nous sommes ravis de vous présenter cette maison de 4 pièces de plain-pied de 115 m². Elle compte trois chambres, une cuisine et deux salles de bains.
Le terrain de la propriété s'étend sur 730 m².
Cette maison est neuve.
Une école primaire est implantée dans le quartier. Niveau transports en commun, il y a quatre gares à moins de 10 minutes en voiture. Les autoroutes A40 et A39 sont accessibles à moins de 8 km. On trouve un bassin de natation, un commerce, une boulangerie et une boucherie-charcuterie à proximité du logement.
Elle est à vendre pour la somme de 355 000 €.
Contactez Sébastien GABRILLARGUES (06-81-77-73-67) pour toute question sur cette maison, sur les démarches à suivre ou sur les modalités de vente. Maisons France Confort Bourg-en-Bresse est là pour vous accompagner à toutes les étapes de votre projet.

Annonce proposée par un Agent Commercial Partenaire.

Mentions légales

Terrain proposé par un partenaire foncier selon disponibilités et autorisation de publicité au prix de 95 000 €. Hors droit d'enregistrement et frais de notaire. Terrain + Maison proposés au prix de 355 000 € (Hors branchements et raccordements, papiers peints, peintures, revêtement de sol dans les chambres. Tarif modifiable sans préavis). Etiquette énergie : A. Différents modèles disponibles pour ce terrain. Assurances et garanties du constructeur (RC professionnelle, décennale, dommage ouvrage, garantie de remboursement de l'acompte, livraison à prix et délai convenu) : https://www.maisons-france-confort.fr/mentions-legales/. HEXAOM Services est enregistré auprès de l'ORIAS en tant que Courtier en financement, Niveau 1, sous le numéro 14001345.

Contactez l'agence de Bourg-en-Bresse

04 74 14 04 47

    * Champs obligatoires

    Vos informations sont traitées par HEXAOM et transmises à un conseiller commercial qui vous contactera afin de répondre à votre demande. Les plans et images présentés sur notre site sont la propriété d’HEXAOM et ne peuvent pas être reproduits sans son accord. Pour retrouver notre politique de protection des données personnelles et exercer vos droits conformément à la « loi informatique et liberté » cliquez-ici.