Maison neuve à
Jaulnes (77480) Référence : CY2435987_1

Prix du projet : Maison avec Terrain

prix 191 200 €

  • 5 pièces
  • 3 chambres
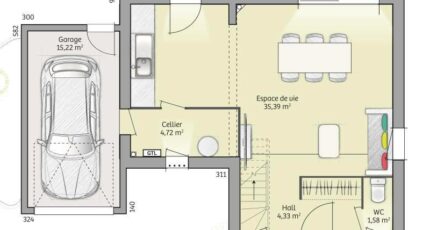
  • Surface maison 90 m2

Jaulnes : maison T5 (90 m²) en vente
MAISON 5 PIÈCES NEUVE - PROCHE DE SENS
En vente : à quelques kilomètres de Sens, nous sommes ravis de vous présenter à Jaulnes (77480), cette maison de 5 pièces de 90 m². Elle propose trois chambres, une cuisine et une salle de bains.
Le terrain de la propriété est de 1 000 m².
Il s'agit d'une maison de 2 niveaux. Elle est neuve.
Une école élémentaire est implantée dans le quartier.
Elle est à vendre pour la somme de 191 200 €.
Prenez contact avec Cedric YAHIAOUI (06-66-57-00-63) pour obtenir de plus amples renseignements sur cette maison ou sur les modalités de vente.

Annonce proposée par un Agent Commercial Partenaire.

Mentions légales

Terrain proposé par un partenaire foncier selon disponibilités et autorisation de publicité au prix de 31 200 €. Hors droit d'enregistrement et frais de notaire. Terrain + Maison proposés au prix de 191 200 € (Hors branchements et raccordements, papiers peints, peintures, revêtement de sol dans les chambres. Tarif modifiable sans préavis). Etiquette énergie : A. Différents modèles disponibles pour ce terrain. Assurances et garanties du constructeur (RC professionnelle, décennale, dommage ouvrage, garantie de remboursement de l'acompte, livraison à prix et délai convenu) : https://www.maisons-france-confort.fr/mentions-legales/. HEXAOM Services est enregistré auprès de l'ORIAS en tant que Courtier en financement, Niveau 1, sous le numéro 14001345.

Contactez l'agence de Magny-le-Hongre

01 84 80 92 96

    * Champs obligatoires

    Vos informations sont traitées par HEXAOM et transmises à un conseiller commercial qui vous contactera afin de répondre à votre demande. Les plans et images présentés sur notre site sont la propriété d’HEXAOM et ne peuvent pas être reproduits sans son accord. Pour retrouver notre politique de protection des données personnelles et exercer vos droits conformément à la « loi informatique et liberté » cliquez-ici.