Maison neuve à
Mouy-sur-Seine (77480) Référence : CY2436201_2

Prix du projet : Maison avec Terrain

prix 206 000 €

  • 5 pièces
  • 3 chambres
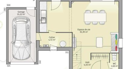
  • Surface maison 90 m2

VENTE : maison T5 (90 m²) à Mouy-sur-Seine
PROCHE DE SENS - MAISON 5 PIÈCES NEUVE
À deux pas de Sens, ayez le coup de coeur pour cette maison de 5 pièces de 90 m² à Mouy-sur-Seine (77480).
Il s'agit d'une maison de 2 niveaux. Son intérieur compte trois chambres, une cuisine et une salle de bains. Cette maison est neuve.
Le terrain de la propriété est de 1 125 m².
Il y a deux établissements scolaires à moins de 10 minutes à pied et dont le Collège Jean Rostand. On trouve une bibliothèque, un bassin de natation, un tennis, des commerces, trois boulangeries, deux supermarchés, un bureau de poste et une boucherie-charcuterie à quelques minutes à peine. Ne manquez pas le marché Place de la Halle chaque vendredi matin.
Elle est à vendre pour la somme de 206 000 €.
Prenez contact avec notre agence (YAHIAOUI Cedric : 06-66-57-00-63) pour toute question sur cette maison ou sur les modalités de vente.

Annonce proposée par un Agent Commercial Partenaire.

Mentions légales

Terrain proposé par un partenaire foncier selon disponibilités et autorisation de publicité au prix de 46 000 €. Hors droit d'enregistrement et frais de notaire. Terrain + Maison proposés au prix de 206 000 € (Hors branchements et raccordements, papiers peints, peintures, revêtement de sol dans les chambres. Tarif modifiable sans préavis). Etiquette énergie : A. Différents modèles disponibles pour ce terrain. Assurances et garanties du constructeur (RC professionnelle, décennale, dommage ouvrage, garantie de remboursement de l'acompte, livraison à prix et délai convenu) : https://www.maisons-france-confort.fr/mentions-legales/. HEXAOM Services est enregistré auprès de l'ORIAS en tant que Courtier en financement, Niveau 1, sous le numéro 14001345.

Contactez l'agence de Magny-le-Hongre

01 84 80 92 96

    * Champs obligatoires

    Vos informations sont traitées par HEXAOM et transmises à un conseiller commercial qui vous contactera afin de répondre à votre demande. Les plans et images présentés sur notre site sont la propriété d’HEXAOM et ne peuvent pas être reproduits sans son accord. Pour retrouver notre politique de protection des données personnelles et exercer vos droits conformément à la « loi informatique et liberté » cliquez-ici.