Maison neuve à
Jonquières (60680) Référence : CY2434895_1

Prix du projet : Maison avec Terrain

prix 235 000 €

  • 5 pièces
  • 3 chambres
  • Surface maison 90 m2

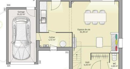
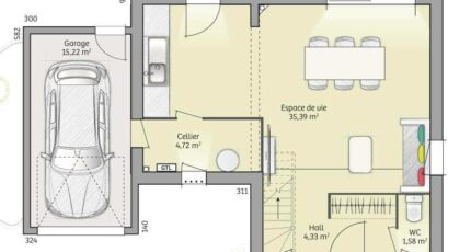
VENTE d'une maison F5 (90 m²) à Jonquières
MAISON 5 PIÈCES NEUVE - PROCHE DE COMPIÈGNE
En vente à quelques kilomètres de Compiègne, nous vous proposons cette maison de 5 pièces de 90 m² et de 200 m² de terrain à Jonquières (60680). Son intérieur dispose de trois chambres, d'une cuisine et d'une salle de bains.
C'est une maison de 2 niveaux. Elle est neuve.
Une école primaire est implantée dans le quartier. Niveau transports en commun, il y a sept gares à moins de 10 minutes en voiture.
Elle est à vendre pour la somme de 235 000 €.
Prenez contact avec notre agence (Cedric YAHIAOUI : 06-66-57-00-63) pour toute information sur la maison.

Annonce proposée par un Agent Commercial Partenaire.

Mentions légales

Terrain proposé par un partenaire foncier selon disponibilités et autorisation de publicité au prix de 75 000 €. Hors droit d'enregistrement et frais de notaire. Terrain + Maison proposés au prix de 235 000 € (Hors branchements et raccordements, papiers peints, peintures, revêtement de sol dans les chambres. Tarif modifiable sans préavis). Etiquette énergie : A. Différents modèles disponibles pour ce terrain. Assurances et garanties du constructeur (RC professionnelle, décennale, dommage ouvrage, garantie de remboursement de l'acompte, livraison à prix et délai convenu) : https://www.maisons-france-confort.fr/mentions-legales/. HEXAOM Services est enregistré auprès de l'ORIAS en tant que Courtier en financement, Niveau 1, sous le numéro 14001345.

Contactez l'agence de Magny-le-Hongre

01 84 80 92 96

    * Champs obligatoires

    Vos informations sont traitées par HEXAOM et transmises à un conseiller commercial qui vous contactera afin de répondre à votre demande. Les plans et images présentés sur notre site sont la propriété d’HEXAOM et ne peuvent pas être reproduits sans son accord. Pour retrouver notre politique de protection des données personnelles et exercer vos droits conformément à la « loi informatique et liberté » cliquez-ici.