Maison neuve à
Juillan
(65290) Référence :
VC2429936_1
Prix du projet : Maison avec Terrain
prix 254 900 €
- 4 pièces
- 3 chambres
- Surface maison 90 m2
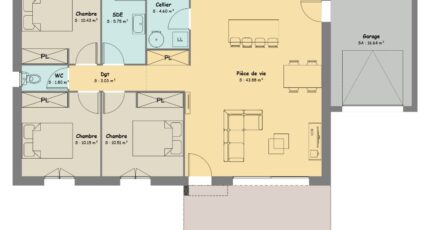
Maison F4 (90 m²) en vente à Juillan
EMPLACEMENT PRIVILÉGIÉ - VUE DÉGAGÉE
En vente à quelques kilomètres de Tarbes, nous sommes heureux de vous présenter, bénéficiant d'un emplacement privilégié dans Juillan (65290), cette maison de 4 pièces de 90 m² avec vue dégagée. Elle inclut trois chambres, une cuisine, une salle de bains et un garage.
Le terrain de la maison s'étend sur 1 042 m².
Cette maison est de plain-pied. Elle est neuve.
Ce bien est situé dans un secteur prisé. On trouve des écoles maternelles et élémentaires à moins de 10 minutes à pied.
On trouve deux boulangeries, des commerces, un bureau de poste et une boucherie-charcuterie à quelques minutes de la maison.
Il est à vendre pour la somme de 254 900 €.
Contactez Vincent CAUSSIEU (06-10-82-28-65) pour obtenir de plus amples renseignements sur la maison ou sur les démarches à suivre.
Mentions légales
Terrain proposé par un partenaire foncier selon disponibilités et autorisation de publicité au prix de 75 600 €. Hors droit d'enregistrement et frais de notaire. Terrain + Maison proposés au prix de 254 900 € (Hors branchements et raccordements, papiers peints, peintures, revêtement de sol dans les chambres. Tarif modifiable sans préavis). Etiquette énergie : A. Différents modèles disponibles pour ce terrain. Assurances et garanties du constructeur (RC professionnelle, décennale, dommage ouvrage, garantie de remboursement de l'acompte, livraison à prix et délai convenu) : https://www.maisons-bruno-petit.com/mentions-legales/.Agence Bruno Petit GHPA de Juillan (65290)
- Téléphone :
- 05 62 32 91 45
- Adressse :
- 9 route de Lourdes
65290 Juillan, France
