Maison neuve à
Juillan
(65290) Référence :
VC2447832_1
Prix du projet : Maison avec Terrain
prix 239 800 €
- 4 pièces
- 3 chambres
- Surface maison 90 m2
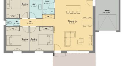
VENTE d'une maison de 4 pièces (90 m²) à Juillan
IDÉALEMENT SITUÉE - MAISON 4 PIÈCES NEUVE
À vendre : située à quelques kilomètres de Tarbes, laissez vous charmer par cette maison de 4 pièces de plain-pied de 90 m². Elle inclut trois chambres, une cuisine et une salle de bains. Elle possède également un garage.
Le terrain de la maison s'étend sur 701 m².
Cette maison est neuve.
La maison est située dans un quartier attractif. Il y a des établissements scolaires primaires à moins de 10 minutes à pied
Il y a des commerces, un supermarché et un bureau de poste à quelques minutes de la maison.
Elle est proposée à l'achat pour 239 800 €.
Contactez notre agence (Vincent CAUSSIEU : 06-10-82-28-65) pour plus de renseignements sur le bien. Maisons Bruno Petit GHPA Juillan est là pour vous accompagner dans tous vos projets immobiliers.
Mentions légales
Terrain proposé par un partenaire foncier selon disponibilités et autorisation de publicité au prix de 66 595 €. Hors droit d'enregistrement et frais de notaire. Terrain + Maison proposés au prix de 239 800 € (Hors branchements et raccordements, papiers peints, peintures, revêtement de sol dans les chambres. Tarif modifiable sans préavis). Etiquette énergie : A. Différents modèles disponibles pour ce terrain. Assurances et garanties du constructeur (RC professionnelle, décennale, dommage ouvrage, garantie de remboursement de l'acompte, livraison à prix et délai convenu) : https://www.maisons-bruno-petit.com/mentions-legales/.Agence Bruno Petit GHPA de Juillan (65290)
- Téléphone :
- 05 62 32 91 45
- Adressse :
- 9 route de Lourdes
65290 Juillan, France
