Maison neuve à
La Châtre (36400) Référence : KG2430544_4

Prix du projet : Maison avec Terrain

prix 235 566 €

  • 6 pièces
  • 4 chambres
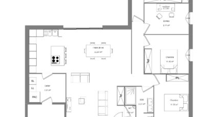
  • Surface maison 110 m2

Projet de construction Maison de 6 pièces (110 m²) à La Châtre
EMPLACEMENT PRIVILÉGIÉ - MAISON 6 PIÈCES NEUVE
À vendre : nous sommes heureux de vous présenter cette maison de 6 pièces de plain-pied de 110 m², bénéficiant d'un emplacement privilégié dans La Châtre (36400).
Son intérieur compte quatre chambres, une cuisine et deux salles de bains. Cette maison est neuve.
Le terrain du bien est de 2 100 m².
La maison est située dans un quartier convoité. Tous les types d'écoles se trouvent à moins de 10 minutes à pied, tout comme une structure d'accueil pour les enfants en bas âge. Il y a un bassin de natation, un tennis, une bibliothèque, quatre boulangeries, des commerces, deux supermarchés, un bureau de poste et trois boucheries-charcuteries dans les environs.
Elle est proposée à l'achat pour 235 566 €.
Contactez Kevin GRIMAUD (*6-22-14-89-67) pour toute question sur la maison. Maisons Bruno Petit MJB Châteauroux vous accompagne dans toutes vos démarches et à toutes les étapes de l'achat.

Mentions légales

Terrain proposé par un partenaire foncier selon disponibilités et autorisation de publicité au prix de 37 316 €. Hors droit d'enregistrement et frais de notaire. Terrain + Maison proposés au prix de 235 566 € (Hors branchements et raccordements, papiers peints, peintures, revêtement de sol dans les chambres. Tarif modifiable sans préavis). Etiquette énergie : A. Différents modèles disponibles pour ce terrain. Assurances et garanties du constructeur (RC professionnelle, décennale, dommage ouvrage, garantie de remboursement de l'acompte, livraison à prix et délai convenu) : https://www.maisons-brunopetit.fr/mentions-legales/.

Contactez l'agence de Châteauroux

02 54 22 66 24

    * Champs obligatoires

    Vos informations sont traitées par HEXAOM et transmises à un conseiller commercial qui vous contactera afin de répondre à votre demande. Les plans et images présentés sur notre site sont la propriété d’HEXAOM et ne peuvent pas être reproduits sans son accord. Pour retrouver notre politique de protection des données personnelles et exercer vos droits conformément à la « loi informatique et liberté » cliquez-ici.