Maison neuve à
La Ferté-sous-Jouarre
(77260) Référence :
FS2379580_1
Prix du projet : Maison avec Terrain
prix 243 000 €
- 5 pièces
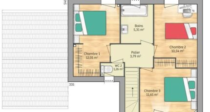
- 3 chambres
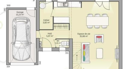
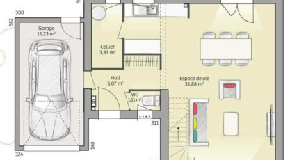
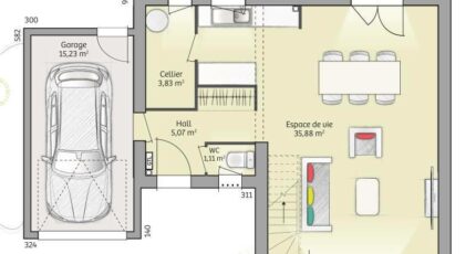
- Surface maison 90 m2
Maison F5 (90 m²) à vendre à La Ferté-sous-Jouarre
IDÉALEMENT SITUÉE - MAISON 5 PIÈCES NEUVE
À vendre : à quelques minutes du Transilien P (40 min de Paris), idéalement située dans La Ferté-sous-Jouarre (77260), laissez vous charmer par cette maison de 5 pièces de 90 m² et de 612 m² de terrain.
Il s'agit d'une maison de 2 niveaux. Son intérieur offre trois chambres, une cuisine et une salle de bains. Cette maison est neuve.
La maison se trouve dans un quartier prisé. Tous les types d'écoles (de la maternelle au lycée) sont implantés à moins de 10 minutes à pied, tout comme une crèche. Niveau transports en commun, on trouve la gare La Ferté-sous-Jouarre dans les alentours. Il y a une bibliothèque, un tennis, des commerces, des boulangeries, trois supermarchés, un bureau de poste et une boucherie-charcuterie à quelques minutes. Le marché Boulevard de Turenne anime les environs.
Son prix de vente est de 243 000 €.
N'hésitez pas à prendre contact avec Félix SOUMARMON (tél : 06-10-24-97-84) pour tout renseignement sur le bien. Maisons France Confort Magny-le-Hongre vous accompagne dans toutes vos démarches et dans tous vos projets immobiliers.
Annonce proposée par un Agent Commercial Partenaire.
Mentions légales
Terrain proposé par un partenaire foncier selon disponibilités et autorisation de publicité au prix de 65 000 €. Hors droit d'enregistrement et frais de notaire. Terrain + Maison proposés au prix de 243 000 € (Hors branchements et raccordements, papiers peints, peintures, revêtement de sol dans les chambres. Tarif modifiable sans préavis). Etiquette énergie : A. Différents modèles disponibles pour ce terrain. Assurances et garanties du constructeur (RC professionnelle, décennale, dommage ouvrage, garantie de remboursement de l'acompte, livraison à prix et délai convenu) : https://www.maisons-france-confort.fr/mentions-legales/. HEXAOM Services est enregistré auprès de l'ORIAS en tant que Courtier en financement, Niveau 1, sous le numéro 14001345.Agence Maisons France Confort de Magny-le-Hongre (77700)
- Téléphone :
- 01 84 80 92 96
- Adressse :
- 11 rue de Courtalin
77700 Magny-le-Hongre, France
