Maison neuve à
La Motte
(83920) Référence :
NE2454929_1
Prix du projet : Maison avec Terrain
prix 430 000 €
- 4 pièces
- 3 chambres
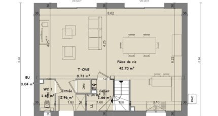
- Surface maison 98 m2
Natacha Espinosa de Maisons France Confort, vous propose de venir construire votre maison sur la Motte.
Sur un terrain plat d'environ 700m², je vous propose de venir y bâtir votre villa de style bastide.
Vous avez besoin de 3, 4 chambres? Réalisons ensemble le projet qui vous conviendra le plus.
Je vous propose ici, une bastide de 98m² composée de 4 chambres à l'étage. Au rez de chaussé, vous profiterez d'une agréable pièce de vie lumineuse ouverte sur le jardin exposé Sud.
Vous souhaitez en savoir plus sur ce projet ou en réaliser un autre plus adapté à vos besoins?
Contactez Natacha Espinosa Maisons France Confort au o6.o9.71.88.69
Le prix comprend: terrain, construction (voir descriptif lors du rendez-vous), provision terrassement
le prix ne comprend pas: frais de notaire, taxes et raccordements, aménagement intérieurs et extérieurs
Mentions légales
Terrain proposé par un partenaire foncier selon disponibilités et autorisation de publicité au prix de 220 000 €. Hors droit d'enregistrement et frais de notaire. Terrain + Maison proposés au prix de 430 000 € (Hors branchements et raccordements, papiers peints, peintures, revêtement de sol dans les chambres. Tarif modifiable sans préavis). Etiquette énergie : A. Différents modèles disponibles pour ce terrain. Assurances et garanties du constructeur (RC professionnelle, décennale, dommage ouvrage, garantie de remboursement de l'acompte, livraison à prix et délai convenu) : https://www.maisons-france-confort.fr/mentions-legales/. HEXAOM Services est enregistré auprès de l'ORIAS en tant que Courtier en financement, Niveau 1, sous le numéro 14001345.Agence Maisons France Confort de Trans-en-Provence (83720)
- Téléphone :
- 04 94 50 88 00
- Adressse :
- Centre Commercial ARCADIA BAT B
83720 Trans-en-Provence, France
