Maison neuve à
Lacroix-Saint-Ouen
(60610) Référence :
XDSS2433817_1
Prix du projet : Maison avec Terrain
prix 335 000 €
- 5 pièces
- 4 chambres
- Surface maison 96 m2
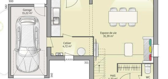
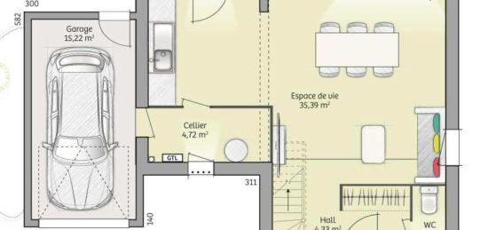
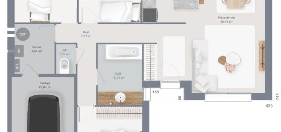
Lacroix-Saint-Ouen (60) - Projet Maison + Terrain + Frais annexes
Dans un lotissement calme et recherché, réalisez votre projet de construction sur un terrain de 655 m² entièrement viabilisé, avec une belle façade de 16 ml.
Nous vous proposons une maison traditionnelle de 97 m² habitables, parfaitement agencée pour le confort familial :
Au rez-de-chaussée : une suite parentale avec salle d'eau, un cellier pratique attenant au garage et à la cuisine, pièce de vie lumineuse et cuisine ouverte
À l'étage : 3 chambres supplémentaires et une salle de bain familiale
Garage intégré pour un accès pratique
Un projet clé en main, pensé pour allier confort, fonctionnalité et qualité de vie.
👉 Prix incluant terrain + maison + frais annexes (hors frais de notaire).
Renseignements et étude personnalisée sur demande, auprès de M. Xavier Dos Santos de chez Maisons France Confort au 06 16 27 53 27.
Mentions légales
Terrain proposé par un partenaire foncier selon disponibilités et autorisation de publicité au prix de 125 760 €. Hors droit d'enregistrement et frais de notaire. Terrain + Maison proposés au prix de 335 000 € (Hors branchements et raccordements, papiers peints, peintures, revêtement de sol dans les chambres. Tarif modifiable sans préavis). Etiquette énergie : A. Différents modèles disponibles pour ce terrain. Assurances et garanties du constructeur (RC professionnelle, décennale, dommage ouvrage, garantie de remboursement de l'acompte, livraison à prix et délai convenu) : https://www.maisons-france-confort.fr/mentions-legales/. HEXAOM Services est enregistré auprès de l'ORIAS en tant que Courtier en financement, Niveau 1, sous le numéro 14001345.Agence Maisons France Confort de Compiègne (60200)
- Téléphone :
- 03 44 86 81 34
- Adressse :
- 47, cours Guynemer
60200 Compiègne, France
