Maison neuve à
Lagraulet-Saint-Nicolas
(31480) Référence :
SP2489525_1
Prix du projet : Maison avec Terrain
prix 384 500 €
- 6 pièces
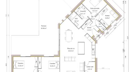
- 4 chambres
- Surface maison 147 m2
VENTE : maison de 6 pièces (147 m²) à Lagraulet-Saint-Nicolas
MAISON 6 PIÈCES NEUVE - PROCHE DE COLOMIERS
À vendre : à quelques kilomètres de Colomiers, Maisons France Confort Tournefeuille vous propose cette maison de 6 pièces de plain-pied de 147 m² à Lagraulet-Saint-Nicolas (31480).
Elle se divise en quatre chambres, une cuisine et deux salles de bains. La maison est neuve.
Le terrain du bien est de 1 000 m².
Plusieurs établissements scolaires (maternelle, élémentaire, primaire et collège) sont implantés à moins de 10 minutes en voiture. Il y a trois tennis, des bibliothèques, trois commerces, un bureau de poste, deux boucheries-charcuteries et trois épiceries à proximité. Enfin, le marché Centre-Ville a lieu chaque mercredi matin.
Son prix de vente est de 384 500 €. Le prix comprend le budget total : terrain + frais de Notaire + maison + raccordement + viabilité. sauf finition et décoration ( cuisine, pentures) et taxes
Contactez notre agence Maisons France Confort TOURNEFEUILLE pour obtenir de plus amples renseignements sur la maison, sur les démarches à suivre et sur les modalités de vente.
Annonce proposée par un Agent Commercial Partenaire.
Mentions légales
Terrain proposé par un partenaire foncier selon disponibilités et autorisation de publicité au prix de 50 000 €. Hors droit d'enregistrement et frais de notaire. Terrain + Maison proposés au prix de 384 500 € (Hors branchements et raccordements, papiers peints, peintures, revêtement de sol dans les chambres. Tarif modifiable sans préavis). Etiquette énergie : A. Différents modèles disponibles pour ce terrain. Assurances et garanties du constructeur (RC professionnelle, décennale, dommage ouvrage, garantie de remboursement de l'acompte, livraison à prix et délai convenu) : https://www.maisons-france-confort.fr/mentions-legales/. HEXAOM Services est enregistré auprès de l'ORIAS en tant que Courtier en financement, Niveau 1, sous le numéro 14001345.Agence Maisons France Confort de Tournefeuille (31170)
- Téléphone :
- 05 61 16 47 77
- Adressse :
- 114 chemin de Larramet
31170 Tournefeuille, France
