Maison neuve à
Lagraulet-Saint-Nicolas
(31480) Référence :
SP2489525_2
Prix du projet : Maison avec Terrain
prix 275 000 €
- 6 pièces
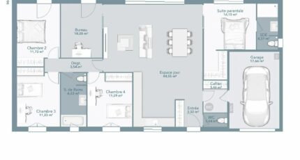
- 5 chambres
- Surface maison 125 m2
Lagraulet-Saint-Nicolas : maison T6 (125 m²) à vendre
MAISON 6 PIÈCES NEUVE - PROCHE DE COLOMIERS
En vente : à 28 km de Colomiers, nous sommes heureux de vous présenter cette maison de 6 pièces de plain-pied de 125 m² à Lagraulet-Saint-Nicolas (31480). Elle se divise en cinq chambres, une cuisine et deux salles de bains.
Le terrain de la propriété est de 1 000 m².
La maison est neuve.
Il y a plusieurs écoles (maternelle, élémentaire, primaire et collège) à moins de 10 minutes en voiture. On trouve trois tennis, des bibliothèques, trois commerces, deux boucheries-charcuteries, un bureau de poste et trois épiceries dans les environs. Le marché Centre-Ville a lieu chaque mercredi matin.
Elle est à vendre pour la somme de 275 000 €.Le prix comprend le budget total : terrain + frais de Notaire + maison + raccordement + viabilité. sauf finition et décoration ( cuisine, pentures) et taxes
Prenez contact avec Maisons France Confort TOURNEFEUILLE pour tout renseignement sur la maison ou sur les modalités de vente. Maisons France Confort Tournefeuille est là pour vous accompagner à toutes les étapes de l'achat.
Annonce proposée par un Agent Commercial Partenaire.
Mentions légales
Terrain proposé par un partenaire foncier selon disponibilités et autorisation de publicité au prix de 50 000 €. Hors droit d'enregistrement et frais de notaire. Terrain + Maison proposés au prix de 275 000 € (Hors branchements et raccordements, papiers peints, peintures, revêtement de sol dans les chambres. Tarif modifiable sans préavis). Etiquette énergie : A. Différents modèles disponibles pour ce terrain. Assurances et garanties du constructeur (RC professionnelle, décennale, dommage ouvrage, garantie de remboursement de l'acompte, livraison à prix et délai convenu) : https://www.maisons-france-confort.fr/mentions-legales/. HEXAOM Services est enregistré auprès de l'ORIAS en tant que Courtier en financement, Niveau 1, sous le numéro 14001345.Agence Maisons France Confort de Tournefeuille (31170)
- Téléphone :
- 05 61 16 47 77
- Adressse :
- 114 chemin de Larramet
31170 Tournefeuille, France
