Maison neuve à
Le Bouscat (33110) Référence : TC2307233_1

Prix du projet : Maison avec Terrain

prix 780 000 €

  • 4 pièces
  • 3 chambres
  • Surface maison 130 m2

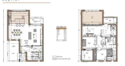
Sur un terrain de 305 m² idéalement situé à proximité du centre-ville, du tram D et de l'avenue de la Libération, découvrez ce projet de maison contemporaine personnalisable alliant modernité, confort et élégance. D'une surface habitable d'environ 130 m², cette maison propose une grande pièce de vie baignée de lumière avec cuisine ouverte et vide sur séjour, offrant un volume généreux et convivial. Elle dispose également de trois chambres, dont une suite parentale avec dressing et salle d'eau privative, ainsi que de belles terrasses extérieures pour profiter pleinement des beaux jours.

Ce projet peut être adapté selon vos envies et vos besoins : agencement, finitions, matériaux... tout est pensé pour créer un lieu de vie unique, dans un cadre résidentiel prisé et agréable au coeur du Bouscat.
Contact : Thomas Carré : SO9 Habitat :O637033308

Mentions légales

Terrain proposé par un partenaire foncier selon disponibilité dans le cadre d’un projet de construction avec So'9 Habitat. Les descriptions, photographies, surfaces et prix illustrant l’annonce sont fournies à titre indicatif et ne sont pas contractuels. Non soumis au DPE. Différents modèles disponibles.

Contactez l'agence de Le Bouscat

06 73 00 14 32

    * Champs obligatoires

    Vos informations sont traitées par HEXAOM et transmises à un conseiller commercial qui vous contactera afin de répondre à votre demande. Les plans et images présentés sur notre site sont la propriété d’HEXAOM et ne peuvent pas être reproduits sans son accord. Pour retrouver notre politique de protection des données personnelles et exercer vos droits conformément à la « loi informatique et liberté » cliquez-ici.