Maison neuve à
Le Poinçonnet (36330) Référence : TM2422469_4

Prix du projet : Maison avec Terrain

prix 189 900 €

  • 3 pièces
  • 2 chambres
  • Surface maison 70 m2

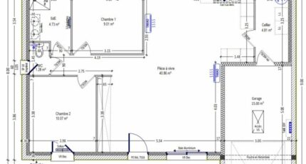
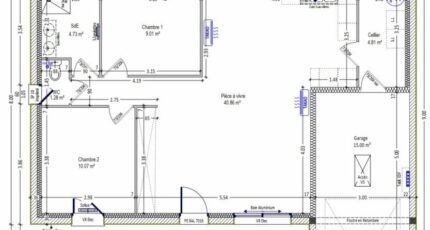
VENTE d'une maison de 3 pièces (70 m²) au Poinçonnet
EMPLACEMENT PRIVILÉGIÉ - MAISON 3 PIÈCES NEUVE
À vendre : localisée à 6 km de Châteauroux, nous sommes ravis de vous proposer, bénéficiant d'un emplacement d'exception dans Le Poinçonnet (36330), cette maison de 3 pièces de plain-pied de 70 m² et de 1 100 m² de terrain. Conçue de plain-pied, elle propose deux chambres, une cuisine et une salle de bains.
Cette maison est neuve.
La maison est située dans un secteur convoité. L'École Primaire François Rabelais, l'École Élémentaire Jacques Prévert et l'École Maternelle la Petite Fadette sont implantées à moins de 10 minutes à pied. Niveau transports en commun, il y a la gare Châteauroux à moins de 10 minutes en voiture. L'autoroute A20 et la nationale N151 sont accessibles à moins de 8 km. On trouve un tennis, deux boulangeries, trois commerces, une épicerie, un bureau de poste et deux boucheries-charcuteries à quelques minutes du bien.
Elle est proposée à l'achat pour 189 900 €.
Contactez Thomas MANIERE (tél : 06-15-51-71-54) pour plus d'informations sur la maison.

Mentions légales

Terrain proposé par un partenaire foncier selon disponibilités et autorisation de publicité au prix de 59 000 €. Hors droit d'enregistrement et frais de notaire. Terrain + Maison proposés au prix de 189 900 € (Hors branchements et raccordements, papiers peints, peintures, revêtement de sol dans les chambres. Tarif modifiable sans préavis). Etiquette énergie : A. Différents modèles disponibles pour ce terrain. Assurances et garanties du constructeur (RC professionnelle, décennale, dommage ouvrage, garantie de remboursement de l'acompte, livraison à prix et délai convenu) : https://www.maisons-brunopetit.fr/mentions-legales/.

Contactez l'agence de Châteauroux

02 54 22 66 24

    * Champs obligatoires

    Vos informations sont traitées par HEXAOM et transmises à un conseiller commercial qui vous contactera afin de répondre à votre demande. Les plans et images présentés sur notre site sont la propriété d’HEXAOM et ne peuvent pas être reproduits sans son accord. Pour retrouver notre politique de protection des données personnelles et exercer vos droits conformément à la « loi informatique et liberté » cliquez-ici.