Maison neuve à
Le Thoronet (83340) Référence : VC2463103_2

Prix du projet : Maison avec Terrain

prix 450 000 €

  • 5 pièces
  • 4 chambres
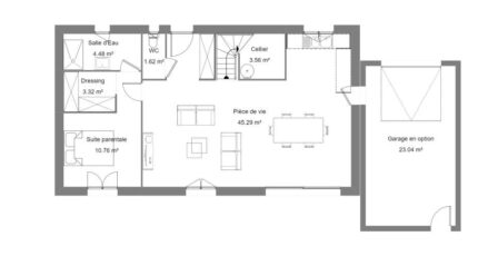
  • Surface maison 113 m2

Projet de construction au Thoronet.

Coup de coeur pour cette belle villa neuve de 113m² habitable sur un terrain de 1330m² idéalement situé en position dominante dans un quartier calme en lisière de zone naturelle.

Cette villa offre une vaste pièce de vie climatisée de 45m² avec cuisine ouverte. L'agencement de cet espace ouvrant par une grande baie sur le jardin, lui confère une ambiance chaleureuse.
4 chambres dont une suite parentale en rez de chaussée avec sa salle d'eau privative et son dressing, de nombreux espaces de rangements et une salle de bains familiale complètent harmonieusement ce bien.

Notre avis : les volumes, la situation et les prestations de cette villa lui donnent tout son charme et sa rareté.

Villa neuve entièrement climatisée aux normes RE2020.
Possibilité d'y ajouter un garage.

Son prix clefs en mains : 450 000 euros incluant la villa, le terrain, ainsi que le coût des raccordements.

Pour tous renseignements et une étude personnalisée, contactez Véronique CHAUVET au O6.28.31.67.99
Maisons France Confort agence de Trans en Provence constructeur de maisons individuelles leader en France. Entreprise familiale fondée en 1919.

Mentions légales

Terrain proposé par un partenaire foncier selon disponibilités et autorisation de publicité au prix de 189 000 €. Hors droit d'enregistrement et frais de notaire. Terrain + Maison proposés au prix de 450 000 € (Hors branchements et raccordements, papiers peints, peintures, revêtement de sol dans les chambres. Tarif modifiable sans préavis). Etiquette énergie : A. Différents modèles disponibles pour ce terrain. Assurances et garanties du constructeur (RC professionnelle, décennale, dommage ouvrage, garantie de remboursement de l'acompte, livraison à prix et délai convenu) : https://www.maisons-france-confort.fr/mentions-legales/. HEXAOM Services est enregistré auprès de l'ORIAS en tant que Courtier en financement, Niveau 1, sous le numéro 14001345.

Contactez l'agence de Trans-en-Provence

04 94 50 88 00

    * Champs obligatoires

    Vos informations sont traitées par HEXAOM et transmises à un conseiller commercial qui vous contactera afin de répondre à votre demande. Les plans et images présentés sur notre site sont la propriété d’HEXAOM et ne peuvent pas être reproduits sans son accord. Pour retrouver notre politique de protection des données personnelles et exercer vos droits conformément à la « loi informatique et liberté » cliquez-ici.