Maison neuve à
Le Thou
(17290) Référence :
CR2474882_4
Prix du projet : Maison avec Terrain
prix 206 666 €
- 3 pièces
- 2 chambres
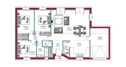
- Surface maison 65 m2
Cette maison rectangulaire très actuelle se démarque avec la découpe de son porche en biseau.
Ce modèle de maison plain-pied se décline en 3 surfaces (65 m2, 85 m2et 90 m2) avec 2 ou 3 chambres et un garage de 15 m2. Il existe également sans garage.
Cette réalisation très actuelle possède un grand salon-séjour efficacement complété par une cuisine ouverte avec cellier.
Ce modèle de plain-pied saura vous plaire grâce à sa simplicité et son agencement idéalement pensé pour le quotidien.
Contact et renseignements: Cédric RÊTEUX O7 67 07 20 68 Projet de construction signé les Maisons MCA Maisons de la Côte Atlantique Saintes est là pour vous accompagner dans tous vos projets immobiliers.
Bien sûr, cette maison est 100% personnalisable.
Mentions légales
Idée de réalisation en modèle prêt à décorer sur l'un de nos terrains partenaires, sous réserve de disponibilités. Voir détails en agence.Agence Maisons de la Côte Atlantique de Rochefort (17300)
- Téléphone :
- 05 46 88 71 67
- Adressse :
- 95 rue des pêcheurs d'Islande
17300 Rochefort, France
