Maison neuve à
Le Thou (17290) Référence : CR2474882_6

Prix du projet : Maison avec Terrain

prix 218 589 €

  • 3 pièces
  • 2 chambres
  • Surface maison 69 m2

Fort d''une expérience de près de 40 ans, Maisons MCA vous accompagne dans votre projet. Contactez nous pour avoir un accompagnement personnalisé à votre projet.

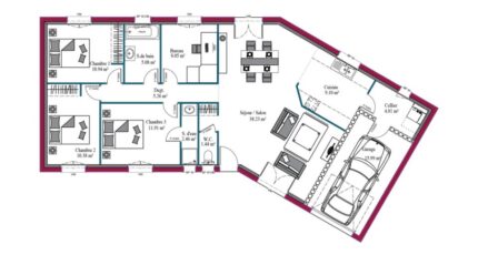
Nous vous proposons votre projet de construction d''une maison de plain pied de 87 m2.
Le coin nuit se compose de 3 chambres, une salle d''eau et WC séparés. La pièce de vie offre une triple expositions pour une grande luminosité.
Le prix comprend le terrain, les frais de notaire, et la construction.
Hors branchements et raccordements.
Contact et renseignements: Cédric RÊTEUX O7 67 07 20 68

Mentions légales

Idée de réalisation en modèle prêt à décorer sur l'un de nos terrains partenaires, sous réserve de disponibilités. Voir détails en agence.

Contactez l'agence de Rochefort

05 46 88 71 67

    * Champs obligatoires

    Vos informations sont traitées par HEXAOM et transmises à un conseiller commercial qui vous contactera afin de répondre à votre demande. Les plans et images présentés sur notre site sont la propriété d’HEXAOM et ne peuvent pas être reproduits sans son accord. Pour retrouver notre politique de protection des données personnelles et exercer vos droits conformément à la « loi informatique et liberté » cliquez-ici.