Maison neuve à
Léguevin
(31490) Référence :
CE2407936_6
Prix du projet : Maison avec Terrain
prix 399 784 €
- 5 pièces
- 4 chambres
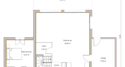
- Surface maison 120 m2
Maison F5 (120 m²) en vente à Léguevin avec Maisons France Confort Tournefeuille au 05.61.16.47.77
MAISON 5 PIÈCES NEUVE - PROCHE DE TOULOUSE
À quelques kilomètres de Toulouse, nous sommes ravis de vous proposer cette maison de 5 pièces de 120 m² et de 632 m² de terrain à Léguevin (31490).
Cette maison possède 2 niveaux. Elle est composée de quatre chambres, d'une cuisine et de deux salles de bains. La maison est neuve.
Il y a des écoles maternelles et élémentaires à moins de 10 minutes à pied. Niveau transports, on trouve six gares à moins de 10 minutes en voiture. On trouve un accès à la nationale N124 à 3 km. Il y a un bassin de natation, un tennis, des commerces, deux boulangeries et un bureau de poste dans les environs. Le marché Place de la Bastide anime le quartier tous les dimanches matin.
Elle est à vendre pour la somme de 399 784 €.
N'hésitez pas à prendre contact avec Maisons France Confort Tournefeuille au 05.61.16.47.77 pour toute question sur la maison ou sur les démarches à suivre. Faites de vos projets immobiliers une réalité avec Maisons France Confort Tournefeuille.
Annonce proposée par un Agent Commercial Partenaire.
Mentions légales
Terrain proposé par un partenaire foncier selon disponibilités et autorisation de publicité au prix de 145 000 €. Hors droit d'enregistrement et frais de notaire. Terrain + Maison proposés au prix de 399 784 € (Hors branchements et raccordements, papiers peints, peintures, revêtement de sol dans les chambres. Tarif modifiable sans préavis). Etiquette énergie : A. Différents modèles disponibles pour ce terrain. Assurances et garanties du constructeur (RC professionnelle, décennale, dommage ouvrage, garantie de remboursement de l'acompte, livraison à prix et délai convenu) : https://www.maisons-france-confort.fr/mentions-legales/. HEXAOM Services est enregistré auprès de l'ORIAS en tant que Courtier en financement, Niveau 1, sous le numéro 14001345.Agence Maisons France Confort de Tournefeuille (31170)
- Téléphone :
- 05 61 16 47 77
- Adressse :
- 114 chemin de Larramet
31170 Tournefeuille, France
