Maison neuve à
Les Authieux-sur-le-Port-Saint-Ouen (76520) Référence : SEMA9065_7

Prix du projet : Maison avec Terrain

prix 322 000 €

  • 9 pièces
  • 5 chambres
  • Surface maison 124 m2

Les Authieux-sur-le-Port-Saint-Ouen : maison T9 (124 m²) à vendre
MAISON 9 PIÈCES NEUVE - PROCHE DE ROUEN
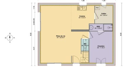
À vendre : située à deux pas de Rouen, découvrez cette maison de 9 pièces de 124 m² aux Authieux-sur-le-Port-Saint-Ouen (76520). Son intérieur comporte cinq chambres, une cuisine et trois salles de bains.
Le terrain de cette maison s'étend sur 650 m².
Cette maison compte 2 niveaux. Elle est neuve.
Il y a l'École Maternelle les Prés Verts et l'École Élémentaire les Prés Verts à moins de 10 minutes à pied. Côté transports, on trouve sept gares à moins de 10 minutes en voiture. Les autoroutes A13 et A139 et les nationales N138 et N338 sont accessibles à moins de 10 km. Il y a un tennis et une bibliothèque à proximité.
Son prix de vente est de 322 000 €.
Contactez notre agence (Sébastien MASSON : 06-23-38-14-17) pour toute information sur la maison.

Annonce proposée par un Agent Commercial Partenaire.

Mentions légales

Terrain proposé par un partenaire foncier selon disponibilités et autorisation de publicité au prix de 128 000 €. Hors droit d'enregistrement et frais de notaire. Terrain + Maison proposés au prix de 322 000 € (Hors branchements et raccordements, papiers peints, peintures, revêtement de sol dans les chambres. Tarif modifiable sans préavis). Etiquette énergie : A. Différents modèles disponibles pour ce terrain. Assurances et garanties du constructeur (RC professionnelle, décennale, dommage ouvrage, garantie de remboursement de l'acompte, livraison à prix et délai convenu) : https://www.maisons-balency.fr/informations-legales/. HEXAOM Services est enregistré auprès de l'ORIAS en tant que Courtier en financement, Niveau 1, sous le numéro 14001345.

Contactez l'agence de Boos

02 35 80 66 66

    * Champs obligatoires

    Vos informations sont traitées par HEXAOM et transmises à un conseiller commercial qui vous contactera afin de répondre à votre demande. Les plans et images présentés sur notre site sont la propriété d’HEXAOM et ne peuvent pas être reproduits sans son accord. Pour retrouver notre politique de protection des données personnelles et exercer vos droits conformément à la « loi informatique et liberté » cliquez-ici.