Maison neuve à
Saint-Jean-du-Cardonnay (76150) Référence : SEMA9069_7

Prix du projet : Maison avec Terrain

prix 299 000 €

  • 9 pièces
  • 5 chambres
  • Surface maison 124 m2

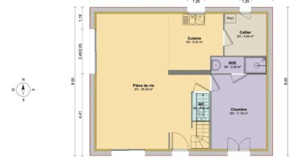
VENTE d'une maison T9 (124 m²) à Saint-Jean-du-Cardonnay
MAISON 9 PIÈCES NEUVE - PROCHE DE ROUEN
En vente : située à 49 km de la Manche et à deux pas de Rouen, notre agence Maisons Balency Boos est ravie de vous présenter cette maison de 9 pièces de 124 m² à Saint-Jean-du-Cardonnay (76150). Elle se divise en cinq chambres, une cuisine et trois salles de bains.
Le terrain de cette maison s'étend sur 900 m².
Cette maison possède 2 niveaux. Elle est neuve.
On trouve une école primaire dans le quartier. Niveau transports en commun, il y a six gares à moins de 10 minutes en voiture. Les autoroutes A150, A151 et A28 et les nationales N338 et N28 sont accessibles à moins de 10 km. On trouve une boulangerie, deux commerces et un supermarché à proximité.
Son prix de vente est de 299 000 €.
Prenez contact avec Sébastien MASSON (tél : 06-23-38-14-17) pour toute information sur cette maison.

Annonce proposée par un Agent Commercial Partenaire.

Mentions légales

Terrain proposé par un partenaire foncier selon disponibilités et autorisation de publicité au prix de 105 000 €. Hors droit d'enregistrement et frais de notaire. Terrain + Maison proposés au prix de 299 000 € (Hors branchements et raccordements, papiers peints, peintures, revêtement de sol dans les chambres. Tarif modifiable sans préavis). Etiquette énergie : A. Différents modèles disponibles pour ce terrain. Assurances et garanties du constructeur (RC professionnelle, décennale, dommage ouvrage, garantie de remboursement de l'acompte, livraison à prix et délai convenu) : https://www.maisons-balency.fr/informations-legales/. HEXAOM Services est enregistré auprès de l'ORIAS en tant que Courtier en financement, Niveau 1, sous le numéro 14001345.

Contactez l'agence de Boos

02 35 80 66 66

    * Champs obligatoires

    Vos informations sont traitées par HEXAOM et transmises à un conseiller commercial qui vous contactera afin de répondre à votre demande. Les plans et images présentés sur notre site sont la propriété d’HEXAOM et ne peuvent pas être reproduits sans son accord. Pour retrouver notre politique de protection des données personnelles et exercer vos droits conformément à la « loi informatique et liberté » cliquez-ici.