Maison neuve à
Les Écrennes (77820) Référence : DC2496375_2

Prix du projet : Maison avec Terrain

prix 289 505 €

  • 5 pièces
  • 3 chambres
  • Surface maison 90 m2

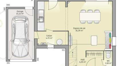
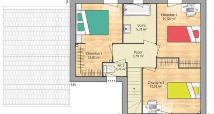
MAISON NEUVE À LES ÉCRENNES AVEC 90 M²

PRÉSENTATION DU BIEN
Située à Les Écrennes, cette maison neuve à construire offre une surface habitable de 90 m² sur un terrain de 215 m².

Cette maison comprend trois chambres ainsi qu'une cuisine et une salle de bains équipées. Elle est développée sur deux niveaux.

Le terrain de 215 m² permet d'envisager un espace extérieur agréable à aménager.

ENVIRONNEMENT

Les Écrennes est une commune calme à proximité de Melun, située à 16 km. Le bien bénéficie de plusieurs points d'intérêt accessibles à pied, comme des courts de tennis et des restaurants situés à moins de 10 minutes. Les lignes de bus 3441 et 3442 desservent la zone avec des arrêts Route de la Borde et Salle Polyvalente proches. L'autoroute A5 est accessible à 6 km. Une école primaire se trouve à proximité. Des commerces sont également disponibles autour du bien.

NOUS CONTACTER
Cette maison est proposée à la vente au prix de 289 505 euros.

Pour plus d'informations, contactez David CORDIER de l'agence Maisons France Confort Melun, réseau Maisons France Confort, au 06-10-79-38-15. Prenez rapidement contact pour réaliser votre projet de construction à Les Écrennes.

Annonce proposée par un Agent Commercial Partenaire.

Mentions légales

Terrain proposé par un partenaire foncier selon disponibilités et autorisation de publicité au prix de 76 900 €. Hors droit d'enregistrement et frais de notaire. Terrain + Maison proposés au prix de 289 505 € (Hors branchements et raccordements, papiers peints, peintures, revêtement de sol dans les chambres. Tarif modifiable sans préavis). Etiquette énergie : A. Différents modèles disponibles pour ce terrain. Assurances et garanties du constructeur (RC professionnelle, décennale, dommage ouvrage, garantie de remboursement de l'acompte, livraison à prix et délai convenu) : https://www.maisons-france-confort.fr/mentions-legales/. HEXAOM Services est enregistré auprès de l'ORIAS en tant que Courtier en financement, Niveau 1, sous le numéro 14001345.

Contactez l'agence de Melun

01 64 14 43 20

    * Champs obligatoires

    Vos informations sont traitées par HEXAOM et transmises à un conseiller commercial qui vous contactera afin de répondre à votre demande. Les plans et images présentés sur notre site sont la propriété d’HEXAOM et ne peuvent pas être reproduits sans son accord. Pour retrouver notre politique de protection des données personnelles et exercer vos droits conformément à la « loi informatique et liberté » cliquez-ici.