Maison neuve à
Lihus
(60360) Référence :
FBLIHUS97_5
Prix du projet : Maison avec Terrain
prix 242 000 €
- 5 pièces
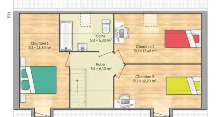
- 3 chambres
- Surface maison 80 m2
VENTE : maison F5 (80 m²) à Lihus
IDÉALEMENT SITUÉE - MAISON 5 PIÈCES NEUVE
À vendre : à quelques kilomètres de Beauvais, laissez vous charmer par cette maison de 5 pièces de 80 m² idéalement située dans Lihus (60360).
Cette maison compte 2 niveaux. Elle compte trois chambres, une cuisine et une salle de bains. La maison est neuve.
Le terrain de la propriété s'étend sur 1 300 m².
Cette maison est située dans un quartier attractif. Côté transports, il y a trois gares (Marseille-en-Beauvaisis, Saint-Omer-en-Chaussée et Grandvilliers) à moins de 10 minutes en voiture. On trouve un commerce à proximité du bien.
Elle est à vendre pour la somme de 242 000 €.
Contactez notre agence (BONELLO Fabrice : 06-09-50-50-09) pour plus de renseignements sur la propriété.
Mentions légales
Terrain proposé par un partenaire foncier selon disponibilités et autorisation de publicité au prix de 68 000 €. Hors droit d'enregistrement et frais de notaire. Terrain + Maison proposés au prix de 242 000 € (Hors branchements et raccordements, papiers peints, peintures, revêtement de sol dans les chambres. Tarif modifiable sans préavis). Etiquette énergie : A. Différents modèles disponibles pour ce terrain. Assurances et garanties du constructeur (RC professionnelle, décennale, dommage ouvrage, garantie de remboursement de l'acompte, livraison à prix et délai convenu) : https://www.maisons-france-confort.fr/mentions-legales/. HEXAOM Services est enregistré auprès de l'ORIAS en tant que Courtier en financement, Niveau 1, sous le numéro 14001345.Agence Maisons France Confort de Beauvais (60000)
- Téléphone :
- 03 44 04 40 04
- Adressse :
- 42 rue Pierre Jacoby
60000 Beauvais, France
