Maison neuve à
Loffre
(59182) Référence :
CD2379209_2
Prix du projet : Maison avec Terrain
prix 383 033 €
- 6 pièces
- 5 chambres
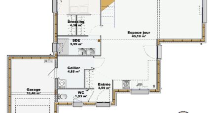
- Surface maison 114 m2
Loffre : maison à ossature bois de 114m2 + garage
Délai de construction rapide : 5 mois, respect de l'environnement, performance énergétique élevée, certification qualité : CTB (composants technique bois), isolation extérieure thermique ITE, très bon coefficient thermique
A 12mn de Douai, 30mn de Cambrai et Valenciennes idéalement située dans Loffre (59182), cette maison de de 114 m². Son intérieur inclut au rez de chaussée une grande pièce de vie lumineuse, une suite parentale avec dressing et salle d'eau, un cellier et un garage
A l'étage 4 chambres et une salle de bains
Le terrain du bien est de 453 m².
Elle se trouve dans un quartier attractif.
Il y a l'École Primaire à moins de 10 minutes à pied et une structure d'accueil pour la petite enfance.
Côté transports, on trouve 1 gare à moins de 10 minutes en voiture.
On trouve un accès à l'autoroute A21 à 3 km.
Son prix de vente est de 383 033 €.
Contactez Carole DOLLET (07-87-32-88-16) pour toute question sur cette maison ou sur les modalités de vente.
Mentions légales
Terrain proposé par un partenaire foncier selon disponibilités et autorisation de publicité au prix de 69 900 €. Hors droit d'enregistrement et frais de notaire. Terrain + Maison proposés au prix de 383 033 € (Hors branchements et raccordements, papiers peints, peintures, revêtement de sol dans les chambres. Tarif modifiable sans préavis). Etiquette énergie : A. Différents modèles disponibles pour ce terrain. Assurances et garanties du constructeur (RC professionnelle, décennale, dommage ouvrage, garantie de remboursement de l'acompte, livraison à prix et délai convenu) : https://www.maisons-france-confort.fr/mentions-legales/. HEXAOM Services est enregistré auprès de l'ORIAS en tant que Courtier en financement, Niveau 1, sous le numéro 14001345.Agence Maisons France Confort de Hénin-Beaumont (62110)
- Téléphone :
- 03 21 14 37 05
- Adressse :
- Chemin de Noyelles
62110 Hénin-Beaumont, France
