Maison neuve à
Longueville
(14230) Référence :
JS2316347_8
Prix du projet : Maison avec Terrain
prix 195 000 €
- 6 pièces
- 4 chambres
- Surface maison 110 m2
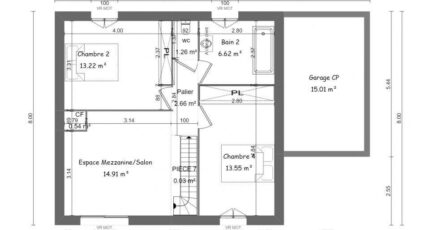
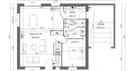
VENTE : maison de 6 pièces (110 m²) à Longueville
IDÉALEMENT SITUÉE - MAISON 6 PIÈCES NEUVE
En vente à 7 km de la Manche, idéalement située dans Longueville (14230), découvrez cette maison de 6 pièces de 110 m² et de 520 m² de terrain.
Cette maison compte 2 niveaux. Elle propose quatre chambres, une cuisine et deux salles de bains. Cette maison est neuve.
La maison se trouve dans un secteur convoité. La nationale N13 est accessible à 1 km.
Elle est proposée à l'achat pour 195 000 €.
N'hésitez pas à prendre contact avec notre agence (HUE Emilie : 06-29-81-46-66) pour toute question sur la propriété. Donnez vie à vos projets immobiliers avec Maisons France Confort Bayeux.
Annonce proposée par un Agent Commercial Partenaire.
Mentions légales
Terrain proposé par un partenaire foncier selon disponibilités et autorisation de publicité au prix de 30 000 €. Hors droit d'enregistrement et frais de notaire. Maison proposée, avec un contrat de construction de maison individuelle, dans le cadre de la loi du 19/12/1990, au prix de 165 000 € (Hors branchements et raccordements, papiers peints, peintures, revêtement de sol dans les chambres, qui sont chiffrés dans les travaux qui restent à charge du client. Tarif modifiable sans préavis). Étiquette énergie : A. Différents modèles disponibles pour ce terrain. Assurances et garanties du constructeur comprises (RC professionnelle, décennale, dommage ouvrage).Agence Maisons France Confort de Bayeux (14400)
- Téléphone :
- 02 31 51 20 91
- Adressse :
- 2, rue Saint Loup
14400 Bayeux, France
