Maison neuve à
Longueville
(14230) Référence :
JS2316347_10
Prix du projet : Maison avec Terrain
prix 175 000 €
- 5 pièces
- 3 chambres
- Surface maison 85 m2
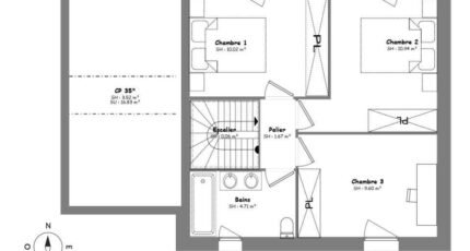
VENTE d'une maison F5 (85 m²) à Longueville
IDÉALEMENT SITUÉE - MAISON 5 PIÈCES NEUVE
À vendre : située à 7 km de la Manche, nous vous proposons, idéalement située dans Longueville (14230), cette maison de 5 pièces de 85 m².
Cette maison comporte 2 niveaux. Son intérieur dispose de trois chambres, d'une cuisine et d'une salle de bains. Cette maison est neuve.
Le terrain de la propriété s'étend sur 520 m².
La maison se trouve dans un quartier recherché. La nationale N13 est accessible à 1 km.
Elle est à vendre pour la somme de 175 000 €.
Contactez notre agence (Emilie HUE : 06-29-81-46-66) pour toute information sur la propriété.
Annonce proposée par un Agent Commercial Partenaire.
Mentions légales
Terrain proposé par un partenaire foncier selon disponibilités et autorisation de publicité au prix de 30 000 €. Hors droit d'enregistrement et frais de notaire. Maison proposée, avec un contrat de construction de maison individuelle, dans le cadre de la loi du 19/12/1990, au prix de 145 000 € (Hors branchements et raccordements, papiers peints, peintures, revêtement de sol dans les chambres, qui sont chiffrés dans les travaux qui restent à charge du client. Tarif modifiable sans préavis). Étiquette énergie : A. Différents modèles disponibles pour ce terrain. Assurances et garanties du constructeur comprises (RC professionnelle, décennale, dommage ouvrage).Agence Maisons France Confort de Bayeux (14400)
- Téléphone :
- 02 31 51 20 91
- Adressse :
- 2, rue Saint Loup
14400 Bayeux, France
