Maison neuve à
Luchy (60360) Référence : FBLUCHY96_2

Prix du projet : Maison avec Terrain

prix 253 000 €

  • 6 pièces
  • 4 chambres
  • Surface maison 105 m2

VENTE : maison de 6 pièces (105 m²) à Luchy
IDÉALEMENT SITUÉE - MAISON 6 PIÈCES NEUVE
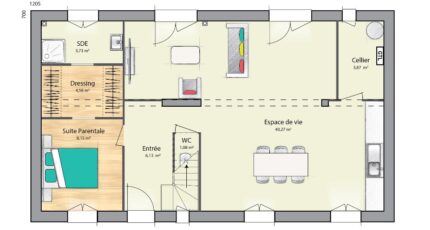
À quelques kilomètres de Beauvais, à vendre idéalement située dans Luchy (60360), votre agence Maisons France Confort Beauvais est ravie de vous présenter cette maison de 6 pièces de 105 m². Son intérieur compte quatre chambres, une cuisine et deux salles de bains.
Le terrain de la propriété est de 840 m².
Cette maison possède 2 niveaux. Elle est neuve.
Cette maison se situe dans un quartier recherché. Une école primaire y est implantée. Niveau transports, on trouve la gare Saint-Omer-en-Chaussée à moins de 10 minutes en voiture. Il y a un accès à l'autoroute A16 à 8 km. Il y a une bibliothèque, un commerce et une boucherie-charcuterie à quelques minutes de la maison.
Son prix de vente est de 253 000 €.
N'hésitez pas à prendre contact avec notre constructeur (BONELLO Fabrice : 06-09-50-50-09) pour plus d'informations sur la maison. Maisons France Confort Beauvais est là pour vous accompagner à toutes les étapes de votre projet.

Mentions légales

Terrain proposé par un partenaire foncier selon disponibilités et autorisation de publicité au prix de 47 500 €. Hors droit d'enregistrement et frais de notaire. Terrain + Maison proposés au prix de 253 000 € (Hors branchements et raccordements, papiers peints, peintures, revêtement de sol dans les chambres. Tarif modifiable sans préavis). Etiquette énergie : A. Différents modèles disponibles pour ce terrain. Assurances et garanties du constructeur (RC professionnelle, décennale, dommage ouvrage, garantie de remboursement de l'acompte, livraison à prix et délai convenu) : https://www.maisons-france-confort.fr/mentions-legales/. HEXAOM Services est enregistré auprès de l'ORIAS en tant que Courtier en financement, Niveau 1, sous le numéro 14001345.

Contactez l'agence de Beauvais

03 44 04 40 04

    * Champs obligatoires

    Vos informations sont traitées par HEXAOM et transmises à un conseiller commercial qui vous contactera afin de répondre à votre demande. Les plans et images présentés sur notre site sont la propriété d’HEXAOM et ne peuvent pas être reproduits sans son accord. Pour retrouver notre politique de protection des données personnelles et exercer vos droits conformément à la « loi informatique et liberté » cliquez-ici.