Maison neuve à
Lumigny-Nesles-Ormeaux (77540) Référence : TM2406831_12

Prix du projet : Maison avec Terrain

prix 360 000 €

  • 5 pièces
  • 3 chambres
  • Surface maison 90 m2

Maison de 5 pièces (90 m²) en vente à Lumigny-Nesles-Ormeaux
PROCHE DE MEAUX - MAISON 5 PIÈCES NEUVE
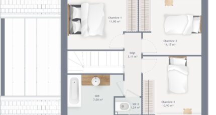
En vente : proche de la gare de Marles-en-Brie (Paris à 35 min avec le Transilien P), votre agence Maisons France Confort Magny-le-Hongre est heureuse de vous proposer cette maison de 5 pièces de 90 m² à Lumigny-Nesles-Ormeaux (77540). Elle dispose de trois chambres, d'une cuisine et d'une salle de bains.
Le terrain de cette maison est de 300 m².
Il s'agit d'une maison de 2 niveaux. Elle est neuve.
Il y a l'École Maternelle les Ecureuils et l'École Primaire du Ru de la Fontaine dans la commune. Niveau transports, on trouve la gare Marles-en-Brie à moins de 10 minutes en voiture. On trouve un commerce et une poissonnerie à proximité du bien.
Elle est à vendre pour la somme de 360 000 €.
Contactez Teddy MELES (06-17-56-83-36) pour toute question sur la propriété.

Annonce proposée par un Agent Commercial Partenaire.

Mentions légales

Terrain proposé par un partenaire foncier selon disponibilités et autorisation de publicité au prix de 110 000 €. Hors droit d'enregistrement et frais de notaire. Terrain + Maison proposés au prix de 360 000 € (Hors branchements et raccordements, papiers peints, peintures, revêtement de sol dans les chambres. Tarif modifiable sans préavis). Etiquette énergie : A. Différents modèles disponibles pour ce terrain. Assurances et garanties du constructeur (RC professionnelle, décennale, dommage ouvrage, garantie de remboursement de l'acompte, livraison à prix et délai convenu) : https://www.maisons-france-confort.fr/mentions-legales/. HEXAOM Services est enregistré auprès de l'ORIAS en tant que Courtier en financement, Niveau 1, sous le numéro 14001345.

Contactez l'agence de Magny-le-Hongre

01 84 80 92 96

    * Champs obligatoires

    Vos informations sont traitées par HEXAOM et transmises à un conseiller commercial qui vous contactera afin de répondre à votre demande. Les plans et images présentés sur notre site sont la propriété d’HEXAOM et ne peuvent pas être reproduits sans son accord. Pour retrouver notre politique de protection des données personnelles et exercer vos droits conformément à la « loi informatique et liberté » cliquez-ici.