Maison neuve à
Lumigny-Nesles-Ormeaux
(77540) Référence :
TM2406831_4
Prix du projet : Maison avec Terrain
prix 420 000 €
- 5 pièces
- 4 chambres
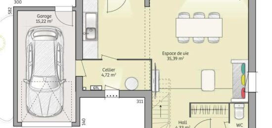
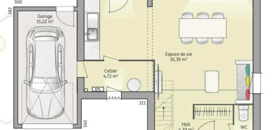
- Surface maison 114 m2
VENTE : maison de 5 pièces (114 m²) à Lumigny-Nesles-Ormeaux
PROCHE DE MEAUX - MAISON 5 PIÈCES NEUVE
À vendre : au pied du Transilien P (gare de Marles-en-Brie, 35 min de Paris), nous sommes heureux de vous présenter cette maison de 5 pièces de 114 m² et de 300 m² de terrain à Lumigny-Nesles-Ormeaux (77540).
Il s'agit d'une maison de 2 niveaux. Son intérieur est composé de quatre chambres, d'une cuisine et d'une salle de bains. Cette maison est neuve.
L'École Maternelle les Ecureuils et l'École Primaire du Ru de la Fontaine sont implantées dans la commune. Niveau transports en commun, on trouve la gare Marles-en-Brie à moins de 10 minutes en voiture. Il y a un commerce et une poissonnerie dans les environs.
Elle est proposée à l'achat pour 420 000 €.
Contactez notre agence (MELES Teddy : 06-17-56-83-36) pour tout renseignement sur la maison ou sur les démarches à suivre. Maisons France Confort Magny-le-Hongre est là pour vous accompagner à toutes les étapes de l'achat.
Annonce proposée par un Agent Commercial Partenaire.
Mentions légales
Terrain proposé par un partenaire foncier selon disponibilités et autorisation de publicité au prix de 110 000 €. Hors droit d'enregistrement et frais de notaire. Terrain + Maison proposés au prix de 420 000 € (Hors branchements et raccordements, papiers peints, peintures, revêtement de sol dans les chambres. Tarif modifiable sans préavis). Etiquette énergie : A. Différents modèles disponibles pour ce terrain. Assurances et garanties du constructeur (RC professionnelle, décennale, dommage ouvrage, garantie de remboursement de l'acompte, livraison à prix et délai convenu) : https://www.maisons-france-confort.fr/mentions-legales/. HEXAOM Services est enregistré auprès de l'ORIAS en tant que Courtier en financement, Niveau 1, sous le numéro 14001345.Agence Maisons France Confort de Magny-le-Hongre (77700)
- Téléphone :
- 01 84 80 92 96
- Adressse :
- 11 rue de Courtalin
77700 Magny-le-Hongre, France
